2 2 1

2 bed Flat - Basement - Sold Subject to Contract
Bath Road, Woodchester
£60,000

  • Development opportunity in the basement of a Grade II listed building that is a former coaching inn built in 1783
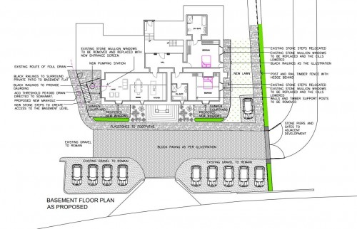
  • Planning permission granted for a two bedroom apartment with courtyard garden and two en-suite shower rooms
  • There is planning permission granted for two parking spaces
  • Planning reference S.23/1565/FUL - details can be found on Stroud District Council website
  • Situated within close proximity to Rodborough and Minchinhampton common with popular eateries around
  • Located between Stroud and Nailsworth in the sought after village of Woodchester
  • Chain free
  • The basement is being sold as Leasehold with a new lease of 999 years from completion.
  • Stroud District Council - banding and rates to be finalised upon completion of the renovation
  • EPC exempt until renovation has been completed
A unique opportunity to purchase a development property within the sought after area of Woodchester. Hillgrove House offers an abundance of character and history, it was built in 1783 and originally used as a coaching inn. The planning permission has been granted for the basement in a Grade II listed building. The permission has been approved for a two bedroom apartment with two en-suite shower rooms, open plan living space, courtyard garden and two parking spaces. More details on the planning permission can be found on Stroud District Council's website under reference S.23/1565/FUL. It is being marketed CHAIN FREE.

Basement Apartment

The planning permission has been granted for an apartment comprising an entrance hall, open plan living room/diner/kitchen, two double bedrooms with en-suite shower rooms and a courtyard. The current floor area of the basement is approximately 2,008 square foot. The permission has granted two parking spaces.

Planning Application

The planning application was put in on 04/08/2023 and granted on 13/03/2024. The full planning application and supporting documentation can be found on the Stroud District Council website under reference S.23/1565/FUL.

Bat Roost

The basement houses bats. In order to comply with the planning terms, a bat survey has been completed, concluding that a bat roost must be built alongside the development of the basement. More details including the bat survey and permissions can be found on the Stroud District Council website under reference S.23/1565/FUL.

Location

The village of Woodchester is situated between the towns of Stroud and Nailsworth. Stroud town centre is approximately 2 miles providing a train station, shopping facilities and amenities. Nailsworth town is approximately just over 2 miles providing further amenities and facilities. Local amenities offered by Woodchester include a Primary School, two Public Houses, Village Shop with a Post Office and Parish Church. Junction 13 of the M5 motorway is approximately just under 6 miles proving easy access to Gloucester, Cheltenham and Bristol.

Material Information

Tenure: The basement is being sold as Leasehold with a new lease of 999 years from completion.
Service charge: Approximately £1,500 per annum. Charged bi-annually for periods 1st Jan - 30th June and 1st July - 31st December. Reviewed annually.
Ground rent: Approximately £50 per annum. Charged bi-annually for periods 1st Jan - 30th June and 1st July - 31st December. Reviewed annually.
Management company: Raynsford Limited.
Council tax band: To be finalised upon completion of the renovation.
Local authority and rates: Stroud District Council - rate to be finalised upon completion of the renovation.
Electricity supply: To be finalised upon completion of the renovation. Hillgrove house does have a mains electricity supply.
Water supply: To be finalised upon completion of the renovation. Hillgrove house does have a mains water supply.
Sewerage: To be finalised upon completion of the renovation. Hillgrove house does have a mains sewerage supply.
Heating: To be finalised upon completion of the renovation. There is currently no gas to Hillgrove House.
Broadband speed: To be finalised upon completion of the renovation.
Mobile phone coverage: To be finalised upon completion of the renovation.

Agents Note

We would recommend bringing a light or torch on the viewing, there is currently no working lights within the basement.

Floorplans For Bath Road,  Woodchester
Arrange a viewing for Bath Road,  Woodchester

For further details on this property please call us on:
01453 827640

Property Brochure Download PDF Arrange Viewing