4 0

4 bed Land - Building Plot - Sold Subject to Contract
Ford Lane, Kilcot, Newent
Guide Price - £735,000

  • Rarely available development opportunity
  • Three residential units, two of which are partially built
  • Rural location
  • Vast potential
  • Plot approaching 1 acre
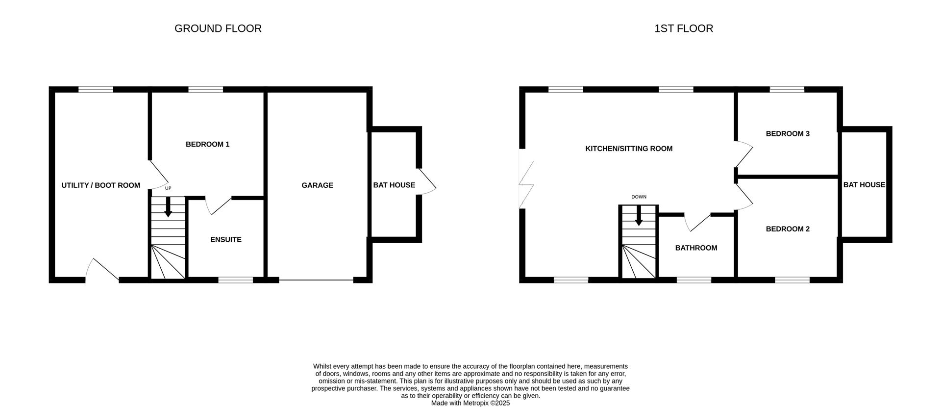
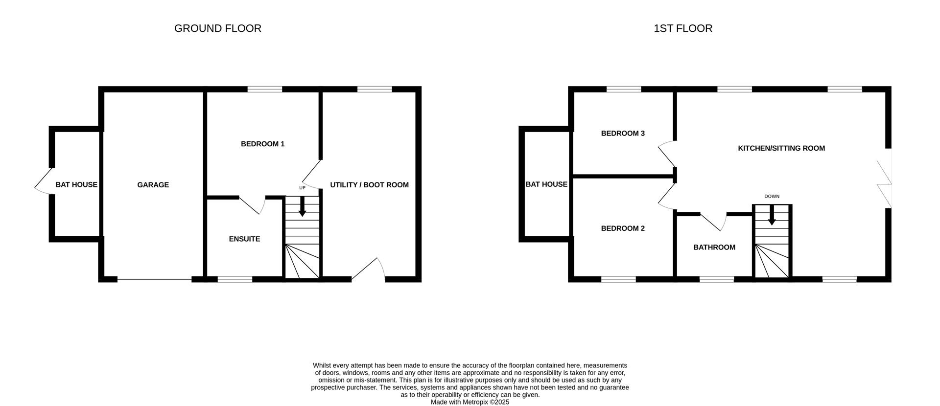
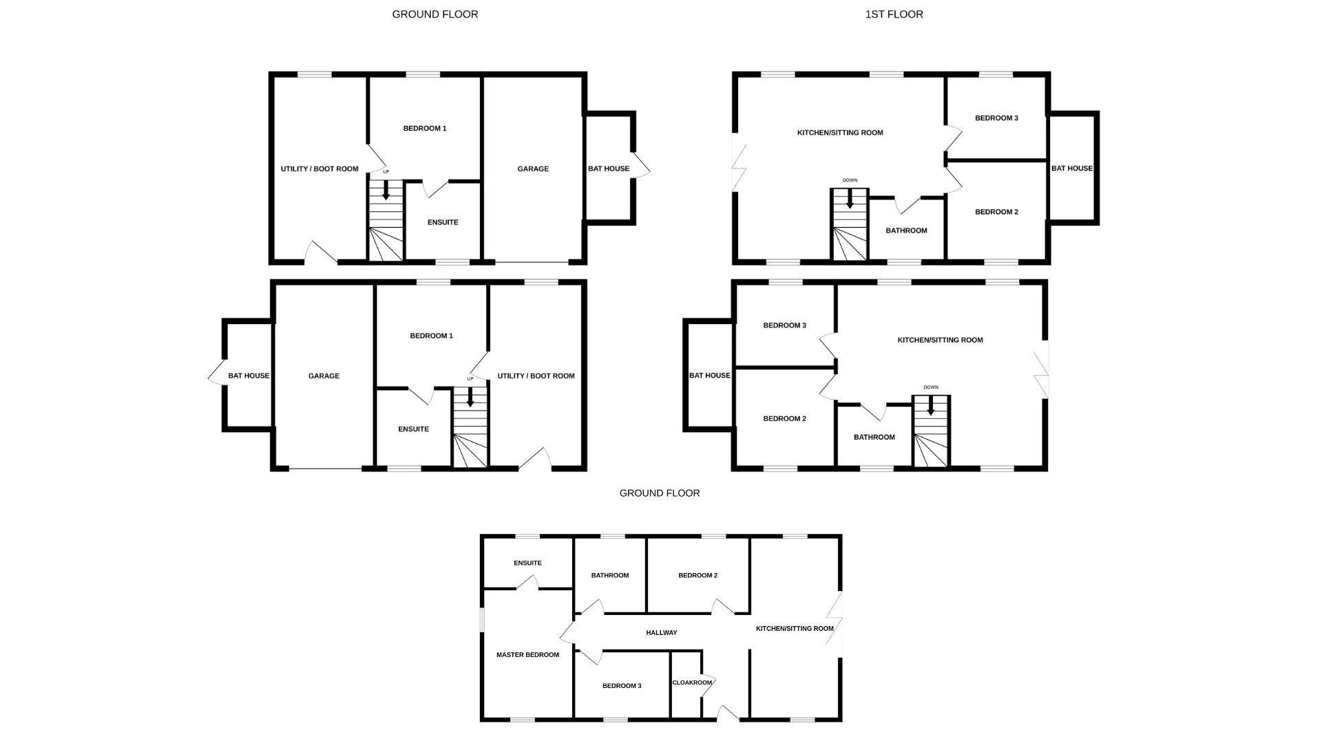
*NEW BUILD DEVELOPMENT OPPORTUNITY* A rare and exciting development opportunity in the countryside. A select site with just three, detached residential units sat on a plot approaching an acre offering vast potential.

Site summary

A rarely available and fantastic development opportunity in a lovely rural location. The select site consists of two partially built three/four bedroom detached family homes and a further building plot for a three bedroom detached bungalow with shared driveway and green spaces.

The area of the whole site is 0.91 of an acre (3705 square metres)

Location

Kilcot and Gorsley are adjoining rural villages located within the Forest of Dean District of Gloucestershire, about two miles west of the Market town of Newent. The rural location benefits from the local Gorsley Goffs Primary School, the renowned pubs The Kilcot Inn and Roadmaker Inn, local shop and post office, popular coffee house, active Cricket Club at nearby Aston Ingham and bus route and good motorway links to both the M50 and M5.

Further information

Planning reference: P1882/19/FUL via Forest of Dean District Council
To be sold as a whole site
All services to be connected and installed

Floorplans For Ford Lane, Kilcot, Newent Floorplans For Ford Lane, Kilcot, Newent Floorplans For Ford Lane, Kilcot, Newent Floorplans For Ford Lane, Kilcot, Newent
Arrange a viewing for Ford Lane, Kilcot, Newent

For further details on this property please call us on:
01531 828970

Property Brochure Download PDF Arrange Viewing