13 14 6

13 bed Flat - Basement - Sold Subject to Contract
Worcester Street, Gloucester
£945,000

  • A unique & rare investment opportunity
  • Current working hotel in the heart of Gloucester
  • Thirteen bedrooms with en-suites and kitchen facilities
  • Potential to convert to HMO or stand alone apartments
  • Secure rear garden & private car park
  • Profitable business with full accounts available on request
  • Great potential for Airbnb
Offered to the market is this rare and unique opportunity to purchase a 13 bedroom property situated in the heart of Gloucester. Currently run as a hotel, the property is an ideal investment opportunity for a multitude of buyers with scope to be converted into holidays lets, HMO or stand alone apartments subject to relevant planning permissions. Viewing is highly advised to consider what this property has to offer.

The Albert Hotel

The Historic Albert Hotel is a family run business located within a convenient central location in the heart of Gloucester. Dating back over 150 years, the property still boasts an abundance of character throughout the property. A rare investment opportunity, the property provides 13 bedrooms all with en-suite shower rooms and some with kitchenettes offering the potential to convert into holiday lets, bed sits, HMO or stand alone apartments subject to relevant planning permissions. With an influx of students re-locating to the area, the property makes for an ideal investment opportunity for student lets also.
The property has been profitable for several years with profits circa £40,000 per annum as a current 10 bed hotel as the current owners currently occupy several rooms within the property for themselves.

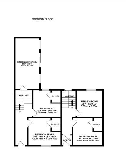
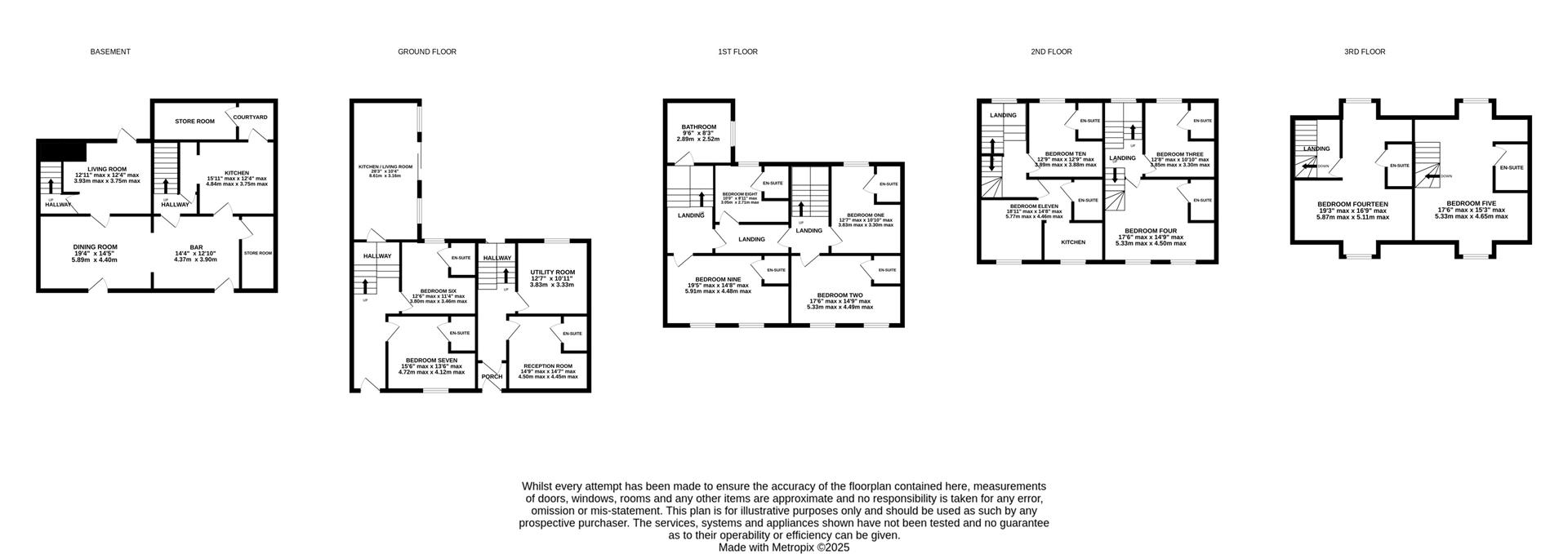
Accommodation

Previously two separate dwellings, the properties have been opened up to create a substantial business premises spread across five floor.
The large basement area provides two large rooms, bar area and commercial kitchen as well as access to a couple of storage rooms. Spread across the four other floors the property continues to provide thirteen bedrooms all with en-suite facilities and some with kitchenettes. Additionally the property also provides a separate utility room, bathroom and additional living area currently occupied by the owners of the property.

Outside

Externally the property benefits from a spacious and private garden area ideal for seating with several outbuildings ideal for storage. Gated access opens to a large private car park area providing off-road parking for approximately ten vehicles.

Location

The characterful and favoured residential setting of Kingsholm is located within close proximity to the City Centre and popular Gloucester Quays development. With a direct line to London Paddington located at the Gloucester Station and accessible routes to both Cheltenham and Bristol, the property would be favoured by a working professional. Whilst the heart of the suburb provides the home to many primary, secondary and grammar schools alongside the Premiership Rugby ground which holds various events throughout the year.

Material Information

Tenure: Freehold.
Local Authority and Rates: Gloucester City Council - Business Rates £6,300 per annum 2025/2026. (Please note the owners have advised they are exempt from paying business rates as receive small business relief which they have received for the last 10 years).
Electricity supply: Mains.
Water supply: Mains.
Sewerage: Mains.
Heating: Gas central heating.
Broadband speed: Basic 15 Mbps, Superfast 80 Mbps, Ultrafast 1000 Mbps download speed.
Mobile phone coverage: EE, Three, O2, Vodafone.

Floorplans For Worcester Street, Gloucester Floorplans For Worcester Street, Gloucester Floorplans For Worcester Street, Gloucester Floorplans For Worcester Street, Gloucester Floorplans For Worcester Street, Gloucester Floorplans For Worcester Street, Gloucester
Arrange a viewing for Worcester Street, Gloucester

For further details on this property please call us on:
01452 398010

Property Brochure Download PDF Arrange Viewing