3 1 3

3 bed House - Mid Terrace - For Sale
Gloucester Road, Stonehouse
£349,950

  • Mid-terrace house with three bedrooms offering an abundance of character and history
  • Three reception rooms to include sun room
  • Additional room on the second floor currently being utilised as an extra living room
  • Laundry room that has plumbing available for a bathroom
  • The ground floor has been adapted to be wheelchair accessible to include wider doorways and level flooring
  • Enclosed South facing rear garden with an array of greenery and access to the parking spaces
  • Garage with three parking spaces
  • Freehold
  • Council tax band C (£2,152.55)
  • EPC rating F36
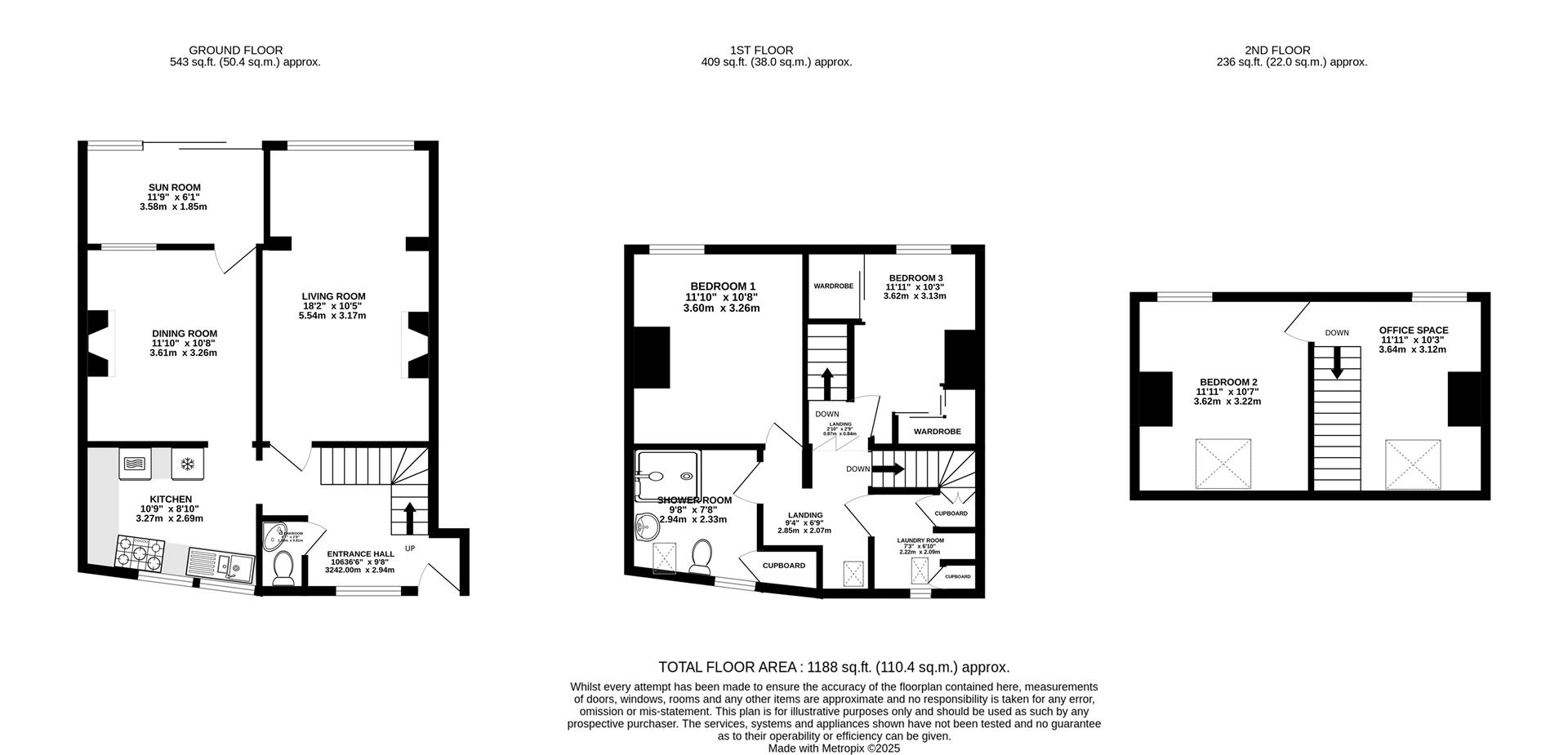
A unique three bedroom, mid-terrace house located within close proximity to the Town Centre and offering versatile accommodation throughout. The property has been adapted by the current owner to be wheelchair accessible, this includes wider doorways and level floors on the ground floor. Upon entry, you are greeted by an entrance hall providing access to the living room with feature fireplace, kitchen with fitted appliances and cloakroom. There is a dining room with exposed brick fireplace, housing a wood burning stove, and a light and airy sun room with access to the garden. There are two double bedrooms and one single bedroom with exposed brick feature fireplace and wardrobes. Further attributes to the property include the upstairs laundry room that benefits from plumbing available, potentially creating a further bathroom and office area, currently being utilised as an additional living room. The rear garden is mature and fully enclosed. There is a garage with power and light and three parking spaces.

Entrance Hall

Wooden door to entrance hall and single-glazed wooden window to front elevation. Access to kitchen, living room, cloakroom and stairs rising to the first floor.

Living Room

uPVC double-glazed window to rear elevation. Feature fireplace.

Kitchen

Two wooden double-glazed windows to front elevation. Range of wall and base units with appliances to include eye-level double oven, five ring gas hob, one and a half bowl sink with mixer tap and drainer, integrated dishwasher and fridge/freezer.

Dining Room

Wooden single-glazed window to sun room and wooden door to sun room. Exposed brick fireplace with wood burning stove.

Sun Room

uPVC double-glazed sliding door and window to rear elevation.

Cloakroom

Low-level WC and wash hand basin.

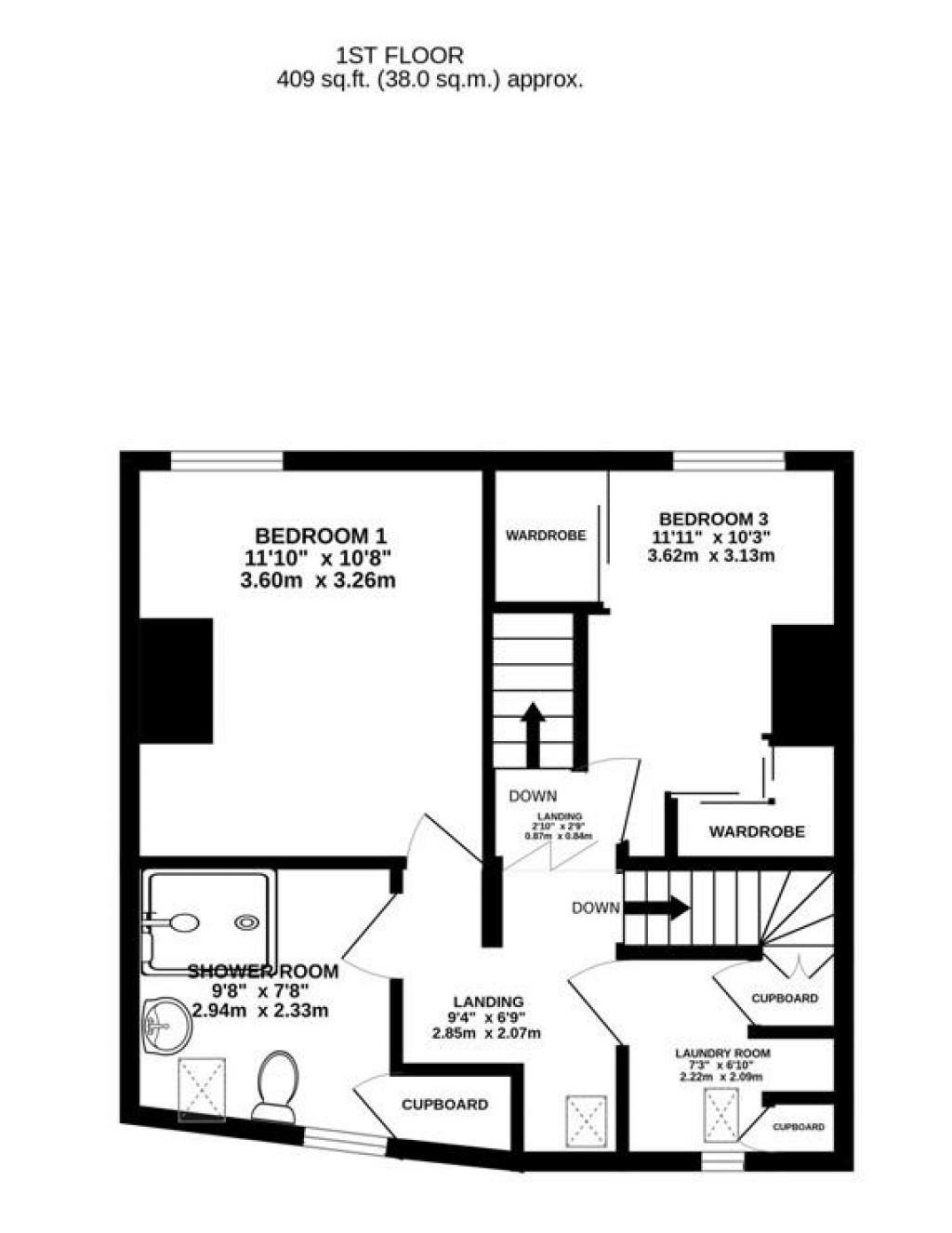
Bedroom One

uPVC double-glazed window to rear elevation. Electric heater.

Bedroom Two

uPVC double-glazed window to front elevation and wooden double-glazed Velux window. Electric heater.

Bedroom Three

uPVC double-glazed window to front elevation. Exposed brick feature fireplace. Two built-in wardrobes with sliding doors. Electric heater.

Shower Room

uPVC double-glazed window to front elevation and wooden double-glazed Velux window. Storage cupboard. Low-level WC, wash hand basin and walk in shower. Electric heater.

Office Space

uPVC double-glazed window to front elevation and wooden double-glazed Velux window. Electric heater.

Laundry Room

uPVC double-glazed window to front elevation and wooden double-glazed Velux window. Storage cupboards. Plumbing for washing machine. Electric heater.

Outside

The property has parking at the rear for three vehicles, this can be accessed via Chestnut Avenue. There is a garage with power and light that benefits from both an up and over door and a door from the garden, there is an additional concreted area to the side for storage. The rear garden is enclosed and mostly laid to patio, it boasts raised beds with an array of plants and greenery. There is the added benefit of a greenhouse and rear access.

Location

The property is located on the edge of Stonehouse town. Local facilities and amenities include a Co-op with post office, restaurants and primary and secondary schools. The property is approximately 2.7 miles to Junction 13 of the M5 motorway, providing access to Gloucester, Cheltenham and Bristol. Stonehouse railway station has a regular train service to London and Cheltenham. The town is situated approximately three miles west of Stroud and twelve miles south of Gloucester.

Material Information

Tenure: Freehold.
Council tax band: C.
Local authority and rates: Stroud District Council - £2,152.55 (2025/26).
Electricity supply: mains.
Water supply: mains.
Sewerage: mains.
Heating: gas central heating.
Broadband speed: 17 Mbps (basic), 80 Mbps (superfast) and 1,800 Mbps (ultrafast).
Mobile phone coverage: EE (Limited), Three, O2 (Limited) and Vodafone (Limited).

Floorplans For Gloucester Road, Stonehouse Floorplans For Gloucester Road, Stonehouse Floorplans For Gloucester Road, Stonehouse Floorplans For Gloucester Road, Stonehouse
EPC For Gloucester Road, Stonehouse
Arrange a viewing for Gloucester Road, Stonehouse

For further details on this property please call us on:
01453 827640

Property Brochure Download PDF Arrange Viewing