3 2 1

3 bed House - Semi-Detached - Sold Subject to Contract
Gilbert Young Close, Great Oldbury, Stonehouse
£315,000

  • Semi-detached house
  • Three bedrooms
  • CHAIN FREE
  • Enclosed rear garden
  • Driveway parking for two vehicles
  • Approximately 4 years remaining on the NHBC warranty
  • Annual service charge of approximately £200 paid to Robert Hitchins
  • Freehold
  • Council tax band C (£2,058.46)
  • EPC rating B85
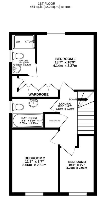
A three bedroom, semi-detached house situated in a cul-de-sac location on the Great Oldbury development within walking distance of the balancing pond and communal green. The property comprises a kitchen/diner, living room and cloakroom to the ground floor. On the first floor there is a master bedroom with en-suite and built-in wardrobes, a further double bedroom, a single bedroom with space over the stairs for those who want to add additional storage cupboards and the family bathroom. The rear South East facing garden is fully enclosed and provides side access to the two tandem parking spaces. The property is being offered to the market CHAIN FREE.

Entrance Hall

Composite door to entrance hall. Access to kitchen/diner, cloakroom and stairs rising to the first floor. Radiator.

Living Room

uPVC double-glazed French doors to rear garden and uPVC double-glazed windows either side. Two radiators.

Kitchen/Diner

uPVC double-glazed windows to front and side elevation. Range of wall and base units with appliances to include stainless steel sink with mixer tap and drainer, four ring gas hob and oven, integrated appliances include dishwasher, washing machine and fridge/freezer. Radiator.

Cloakroom

Low-level WC and wash hand basin. Radiator.

Bedroom One

uPVC double-glazed windows to rear elevation. Built-in wardrobes. Access to en-suite shower room. Radiator.

En-Suite Shower Room

uPVC double-glazed windows to side elevation. Low-level WC, wash hand basin and walk in shower cubicle. Heated towel rail.

Bedroom Two

uPVC double-glazed windows to rear elevation. Radiator.

Bedroom Three

uPVC double-glazed windows to rear elevation. Radiator.

Bathroom

uPVC double-glazed windows to side elevation. Low-level WC, wash hand basin and bath with shower over. Heated towel rail.

Outside

The property has driveway parking for two vehicles and side access to the garden. The rear garden is fully enclosed and mostly laid to lawn with two patio spaces. There is a wooden shed for additional storage.

Location

This property is located within the Great Oldbury development which provides ease of access to both Eastington and Stonehouse. Local facilities include a Co-op with a Post Office, restaurants, primary and secondary schools. The property is approximately four miles to Junction 12 of the M5 motorway providing access to Gloucester, Cheltenham and Bristol. Stonehouse railway station has a regular train service to London and Cheltenham. The town is situated approximately three miles west of Stroud and twelve miles south of Gloucester.

Material Information

Tenure: Freehold.
Council tax band: C.
Local authority and rates: Stroud District Council - £2,058.46 (2025/26).
There is currently an annual service charge of £200 paid to Robert Hitchins.
Electricity supply: mains.
Water supply: mains.
Sewerage: mains.
Heating: gas central.
Broadband speed: 24 Mbps (basic) and 10,000 Mbps (ultrafast).
Mobile phone coverage: EE, Three, O2 and Vodafone.

Floorplans For Gilbert Young Close, Great Oldbury, Stonehouse Floorplans For Gilbert Young Close, Great Oldbury, Stonehouse Floorplans For Gilbert Young Close, Great Oldbury, Stonehouse
EPC For Gilbert Young Close, Great Oldbury, Stonehouse
Arrange a viewing for Gilbert Young Close, Great Oldbury, Stonehouse

For further details on this property please call us on:
01453 827640

Property Brochure Download PDF Arrange Viewing