4 2 2

4 bed House - Detached - For Sale
Standish Gate, Standish, Stonehouse
£585,000

  • Detached bespoke built house by Aqua Construction
  • Four sizeable bedrooms and feature landing space
  • Spacious accommodation throughout to include study and social kitchen/diner
  • Well-presented and tastefully decorated throughout
  • Enclosed West facing rear garden with patio space ideal for alfresco dining
  • Garage and off-road parking for three vehicles
  • Located on a prestigious development on the edge of Stonehouse Town with good transport links
  • Freehold
  • Council tax band E (£2,821.18)
  • EPC rating B85
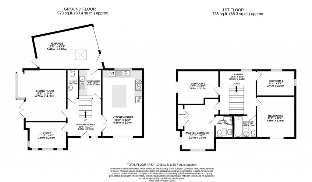
Located within the prestigious Standish Gate development, this bespoke detached house offers an abundance of space with a modern finish. Built in 2018, the property boasts four double bedrooms and well-presented accommodation making it a great family home. Upon entry, you are greeted by a feature staircase and entrance hall giving access to the ground floor accommodation. The ground floor boasts a living room with doors to garden, kitchen/diner, study, utility room and cloakroom. On the first floor are four double bedrooms, including the master with en-suite shower room and a family bathroom. There is a one and a half size garage with off-road parking in front. Situated in a desirable location, this home offers a peaceful retreat while still being within easy reach of local amenities and transport links. The property is being offered to the market CHAIN FREE.

Entrance Hall

uPVC double-glazed window to the front elevation and composite door to entrance hall. Access to living room, kitchen/diner, study, utility room, cloakroom and stairs rising to the first floor. Radiator.

Living Room

uPVC double-glazed Bay window to the side elevation and uPVC double-glazed French doors to the garden. Air conditioning unit and radiator.

Kitchen/Dining Room

uPVC double-glazed windows to the front and rear elevation. Halvanto fully fitted kitchen with range of wall and base units and appliances to include stainless steel one and a half bowl sink with mixer tap and drainer, Neff double oven, Neff five ring gas hob, integrated fridge/freezer and integrated dishwasher. Two radiators.

Study

Three uPVC double-glazed windows to the front elevation and one uPVC double-glazed window to the side elevation. Radiator.

Utility Room

Base units with stainless steel sink and space for washing machine and tumble dryer. Radiator.

Cloakroom

Low-level WC and wash-hand basin. Radiator.

Bedroom One

uPVC double-glazed windows to front and side elevation. Built-in wardrobes and access to en-suite shower room. Radiator.

En-Suite Shower Room

Double-glazed Velux window. Low-level WC, wash hand basin and corner shower cubicle. Heated towel rail.

Bedroom Two

uPVC double-glazed window to front elevation. Radiator.

Bedroom Three

uPVC double-glazed window to side elevation. Radiator.

Bedroom Four

uPVC double-glazed windows to rear and side elevation. Radiator.

Bathroom

Double-glazed Velux window. Low-level WC, wash hand basin and bath with shower over. Heated towel rail.

Outside

Externally, the property benefits from a one and a half sized garage boasting wall and base units with additional worktop. There is off road parking for three vehicles comfortably. The sizeable garden has been lovingly maintained and is largely laid to lawn with pretty shrub and tree borders. Additionally, there is a patio area providing the perfect space for alfresco dining.

Location

The property is located just on the edge of Stonehouse town. Local facilities include a Co-op with a Post Office, restaurants, primary and secondary schools. The property is approximately four miles to Junction 12 of the M5 motorway providing access to Gloucester, Cheltenham and Bristol. Stonehouse railway station has a regular train service to London and Cheltenham. The town is situated approximately three miles west of Stroud and twelve miles south of Gloucester. A wider range of facilities are available in nearby Stroud to include several state and private schools, restaurants and public houses, an award-winning weekly farmers market, leisure, and sports centre and a main line railway station with intercity services.

Material Information

Tenure: Freehold.
Service charge: £552 per annum paid to Horsemarling Management Company.
The property has 5 years remaining on the warranty.
Council tax band: E.
Local authority and rates: Stroud District Council - £2,821.18 (2025/26).
Electricity supply: mains.
Water supply: mains.
Sewerage: mains.
Heating: gas central heating.
Broadband speed: 14 Mbps (basic), 79 Mbps (superfast) and 10,000 Mbps (ultrafast).
Mobile phone coverage: EE, Three, O2 and Vodafone.

Agents Note

The current tenancy expires 31st January 2026.

Floorplans For Standish Gate, Standish, Stonehouse Floorplans For Standish Gate, Standish, Stonehouse Floorplans For Standish Gate, Standish, Stonehouse
EPC For Standish Gate, Standish, Stonehouse
Arrange a viewing for Standish Gate, Standish, Stonehouse

For further details on this property please call us on:
01453 827640

Property Brochure Download PDF Arrange Viewing