2 1 2

2 bed House - Mid Terrace - Sold Subject to Contract
College View, Stonehouse
£269,500

  • Mid-terrace house that is well-presented throughout
  • Two sizeable double bedrooms
  • Attic room with storage cupboard
  • Kitchen with utility area and access to the garden
  • Living room and social dining room
  • Generous rear garden with patio and shed as well as electrics to the rear
  • On-road parking available on surrounding streets, subject to availability
  • Freehold
  • Council tax band B (£1,883.49)
  • EPC rating C70
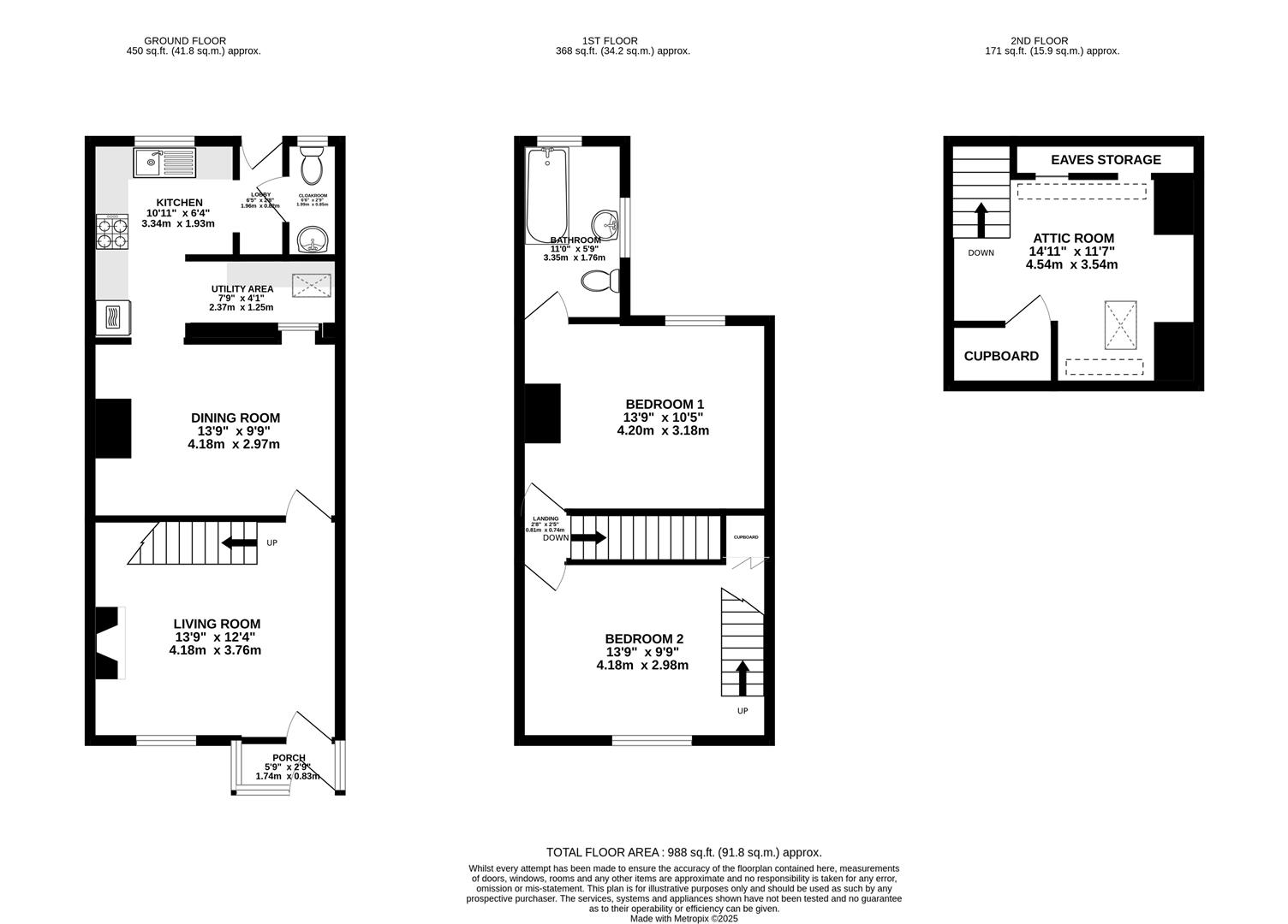
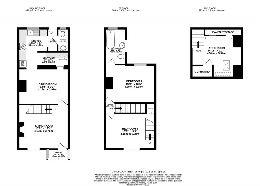
Situated close to the amenities of Stonehouse Town Centre and train station, this two bedroom mid-terrace property is well-presented throughout and offers a generous garden. The attic has been converted to a useable space with a storage cupboard and eaves storage. The property boasts well-proportioned and versatile accommodation, the ground floor comprises a porch, light and airy living room and social dining room. Additionally on the ground floor is the kitchen/utility space as well as a cloakroom. On the first floor are two double bedrooms and a spacious bathroom. The rear garden is mostly laid to lawn with a few patio spaces, and gated access to a footpath at the rear. There is ample on road parking available within the surrounding streets, subject to availability and regulations. The property’s location in Stonehouse offers a blend of community spirit and accessibility, with local shops, parks, and schools within easy reach.

Porch

uPVC double-glazed door to porch, wooden door to living room and uPVC double-glazed windows surrounding.

Living Room

uPVC double-glazed window to front elevation. Stairs rising to the first floor. Gas fireplace. Radiator.

Dining Room

Frosted window to utility area and access to kitchen. Radiator.

Kitchen

uPVC double-glazed window to rear elevation. Range of wall and base units with appliances to include eye-level double oven, four ring gas hob and stainless steel sink with mixer tap and drainer. Access to utility area and lobby.

Utility Area

Double-glazed Velux window. Space for washing machine, tumble dryer and freestanding fridge/freezer.

Lobby

uPVC double-glazed door to garden.

Cloakroom

uPVC double-glazed window to rear elevation. Low-level WC and wash hand basin. Heated towel rail.

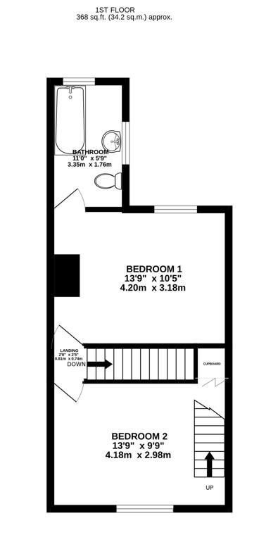
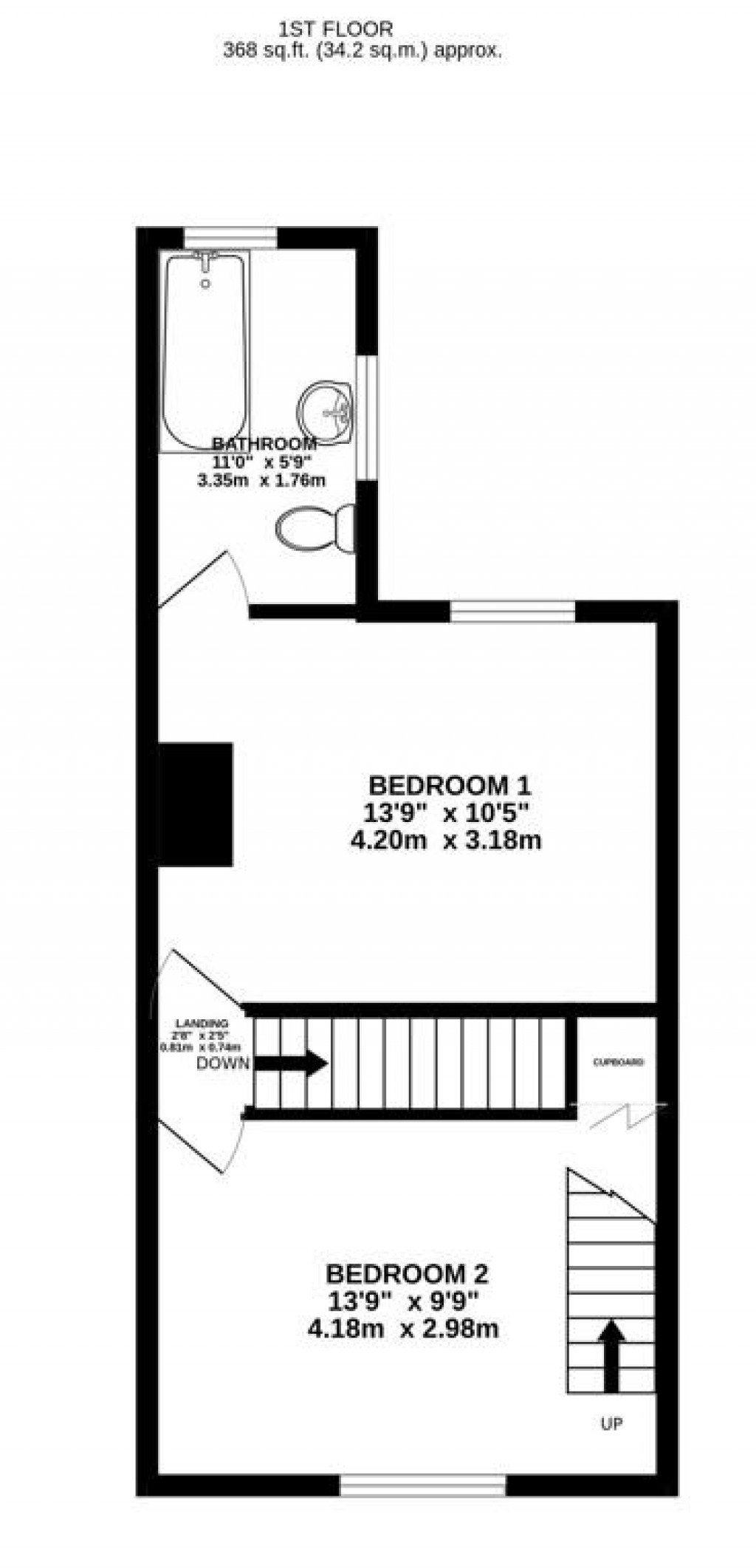
Bedoom One

uPVC double-glazed window to rear elevation. Radiator.

Bedroom Two

uPVC double-glazed window to front elevation. Stairs rising to the attic room. Radiator.

Attic Room

Double-glazed Velux window. Eaves storage and storage cupboard. Radiator.

Bathroom

Two uPVC double-glazed windows to rear elevation. Low-level WC, wash hand basin and bath with shower over. Heated towel rail.

Outside

The rear garden is generous in size and has a gate to a shared footpath at the back. The garden is currently split into two spaces, the top of the garden has a storage shed and electric sockets, it has a fence panel sectioning it off creating two private patio spaces. The bottom part of the garden has an additional patio space and lawned area, ideal for entertaining and alfresco dining. There is on-street parking available in the surrounding streets, subject to availability and regulations.

Location

The property is located in Stonehouse town and is a short drive from both Stroud and Gloucester. Local facilities in the town include a Co-op with a post office, restaurants, a variety of shops, a building society, primary and secondary schools. Stonehouse is an ideal location for commuting and also benefits from a railway station which has regular services to London and Cheltenham as well as regular bus services. Junction 13 of the M5 motorway, is approximately two miles away, providing easy access to Gloucester, Bristol and Cheltenham. A wider range of facilities are available in nearby Stroud to include several state and private schools, restaurants and public houses, an award-winning weekly farmers market, leisure, and sports centre and a main line railway station with intercity services.

Material Information

Tenure: Freehold.
Council tax band: B.
Local authority and rates: Stroud District Council - £1,883.49 (2025/26).
Electricity supply: mains.
Water supply: mains.
Sewerage: mains.
Heating: gas central heating.
Broadband speed: 17 Mbps (basic) and 58 Mbps (superfast).
Mobile phone coverage: EE, Three, O2 and Vodafone.

Floorplans For College View, Stonehouse Floorplans For College View, Stonehouse Floorplans For College View, Stonehouse Floorplans For College View, Stonehouse
EPC For College View, Stonehouse
Arrange a viewing for College View, Stonehouse

For further details on this property please call us on:
01453 827640

Property Brochure Download PDF Arrange Viewing