3 1 1

3 bed House - Mid Terrace - Sold Subject to Contract
St. Lawrence Road, Gloucester
£250,000

  • Chain free
  • Open plan kitchen/diner
  • Well presented throughout
  • Utility room
  • Close to local schools and amenities
  • Off road parking
  • Good size rear garden
  • Gas central heating and double glazing
  • EPC rating C72
  • Gloucester City Council; Tax Band A - £1,492.52 (2025/2026)
Situated in the popular area of Barnwood, this three-bedroom property offers a blend of comfort and convenience. The property features an open-plan kitchen/diner, a living area, and three generously sized bedrooms. Outside the property is a good-sized rear garden and a driveway, offering secure off-road parking. Located close to Barnwood Park School and other local schools and amenities, this property offers practical living. Chain Free.

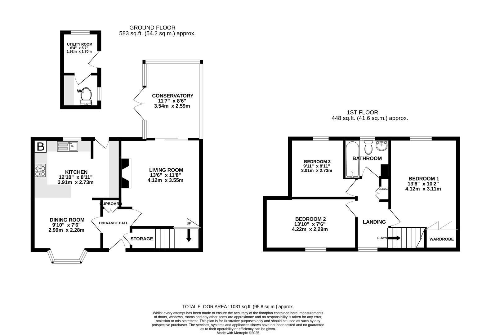
Entrance Hall

Built-in storage cupboard, understairs storage, door to living room, door to;

Kitchen/Diner

Double-glazed window to front and rear elevations, radiator, a range of matching wall & base units with worktops over, six-ring range hob, stainless steel one-bowl sink with drainer unit, boiler, integrated oven, space for fridge, space for freezer, door to rear garden.

Living Room

Radiator, fireplace, access to stairs to the first floor, sliding door to;

Conservatory

Double-glazed windows to side and rear elevations, French doors to rear garden.

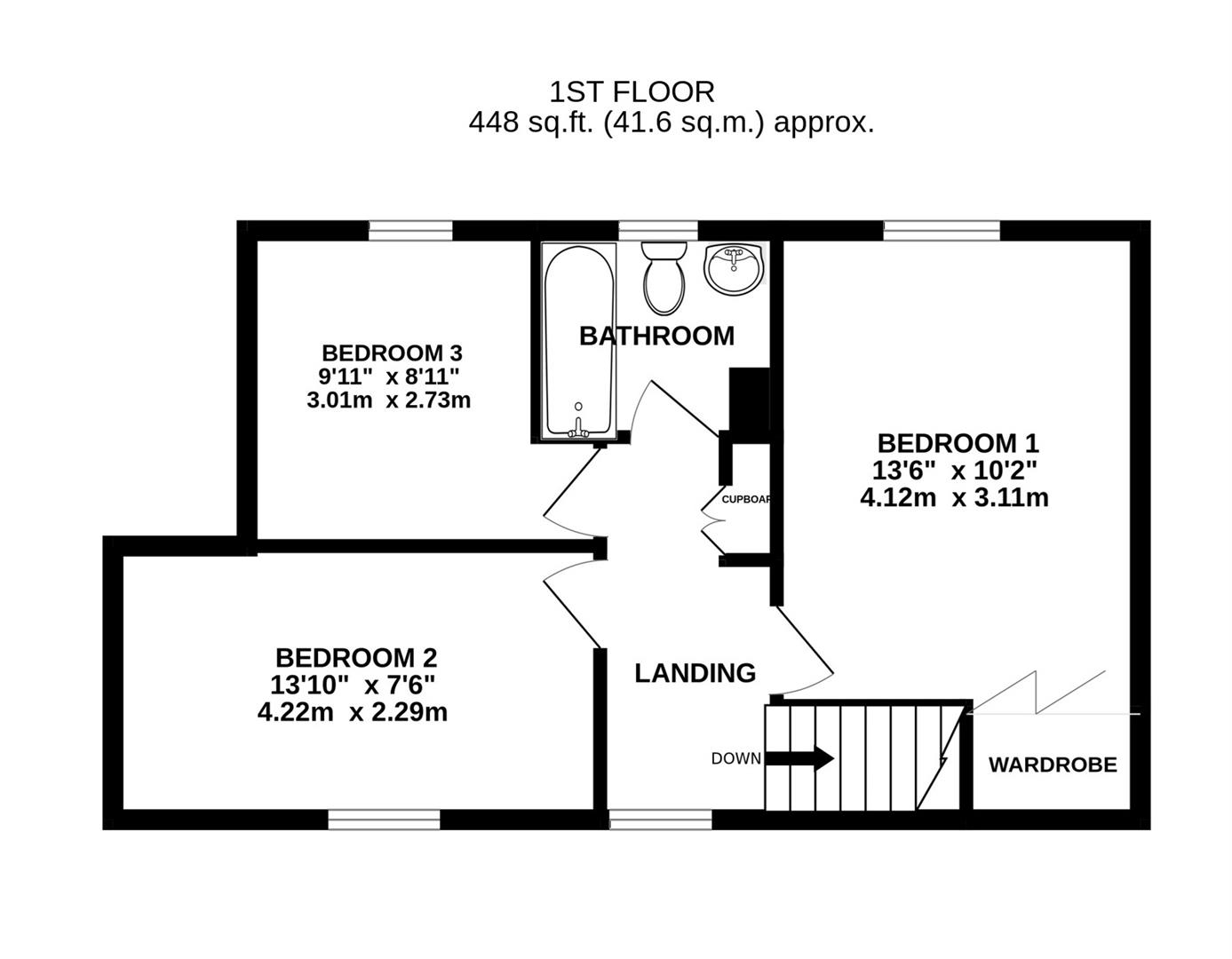
On the first floor

Landing

Access to all bedrooms and the bathroom.

Bedroom One

Double-glazed window to rear elevation, radiator, built-in wardrobe.

Bedroom Two

Double-glazed window to rear elevation, radiator.

Bedroom Three

Double-glazed window to front elevation, radiator.

Bathroom

Double-glazed obscure window to rear elevation, radiator, WC, wash hand basin with base unit, bath with shower.

Outside

To the front of the property is a shared side access and a brick-paved driveway bordered by a brick wall and entrance gates. To the rear of the property is a combination of patio seating and lawn areas, a range of bushes and shrubs, access to the utility room, a storage shed, and a greenhouse.

Utility Room

Double-glazed window to rear elevation, space for washing machine, space for dryer, door to;

WC

Double-glazed obscure window to side elevation, WC with handwash basin, worktop space.

Location

Located in the popular suburb of Barnwood. Various local amenities include the schools, Barnwood Primary and Hillview primary as well as access to several secondary and grammar schools being located within the city. A short distance from access to the M5 provides ideal links to Cheltenham, Cirencester, and Bristol, whilst a direct line to London Paddington can be located at Gloucester Station. The immediate locality offers various walks and open spaces within arguably one of Gloucester's most desirable established residential areas.

Material Information

Tenure: Freehold.
Council Tax Band: Tax Band A
Local Authority and Rates: Gloucester City Council; £1,492.52 (2025/2026)
Electricity supply: Mains
Water supply: Mains
Sewerage: Mains
Heating: Gas central heating
Broadband speed: Standard 14 Mpbs, Ultrafast 1000 Mbps.
Mobile phone coverage: EE(Likely), Three(Likely), 02(Likely) and Vodafone(Likely)

Floorplans For St. Lawrence Road, Gloucester Floorplans For St. Lawrence Road, Gloucester Floorplans For St. Lawrence Road, Gloucester
EPC For St. Lawrence Road, Gloucester
Arrange a viewing for St. Lawrence Road, Gloucester

For further details on this property please call us on:
01452 941950

Property Brochure Download PDF Arrange Viewing