4 2 1

4 bed House - Mid Terrace - Sold Subject to Contract
Bradestones Way, Stonehouse
£308,000

  • Modern mid-terrace town house in the popular village of Eastington
  • Four bedrooms to include master with views and en-suite shower room
  • Two bathrooms and a cloakroom
  • Living room with Juliet balcony overlooking rear garden and fields
  • Enclosed and low maintenance rear garden with decking and patio
  • Driveway parking for two vehicles and a integral garage
  • CHAIN FREE and priced to sell
  • Freehold
  • Council tax band C (£2,002.44)
  • EPC rating C77
Modern and sizeable mid-terrace house located in the desirable village of Eastington. This charming property boasts a well-designed layout, featuring four bedrooms that provide ample room for family living or guest accommodation. The house includes a comfortable and airy living room with Juliet balcony and social kitchen/diner with access to the garden, perfect for relaxing or entertaining guests. With two bathrooms and ground floor cloakroom, this home offers convenience for all residents. The modern design ensures that the interiors are both stylish and functional, making it an ideal choice for those seeking a contemporary living space. There is a low maintenance garden, integral garage and driveway parking for two vehicles. The property is being offered to the market CHAIN FREE. Eastington offers great transport links and a brilliant community feel.

Entrance Hall

Composite door to entrance hall. Access to kitchen/diner, cloakroom, integral garage, under-stairs cupboard and stairs rising to the first floor. Radiator.

Living Room

uPVC double-glazed French doors to Juliet balcony with outlook over the garden. Two radiators.

Kitchen/Diner

Two uPVC double-glazed windows to rear elevation and uPVC double-glazed French doors to garden. Range of wall and base units with appliances to include stainless steel one and a half bowl sink with mixer tap and drainer, four ring gas hob and oven. Space for washing machine, dishwasher and fridge/freezer. Radiator.

Cloakroom

Low-level WC and wash hand basin. Radiator.

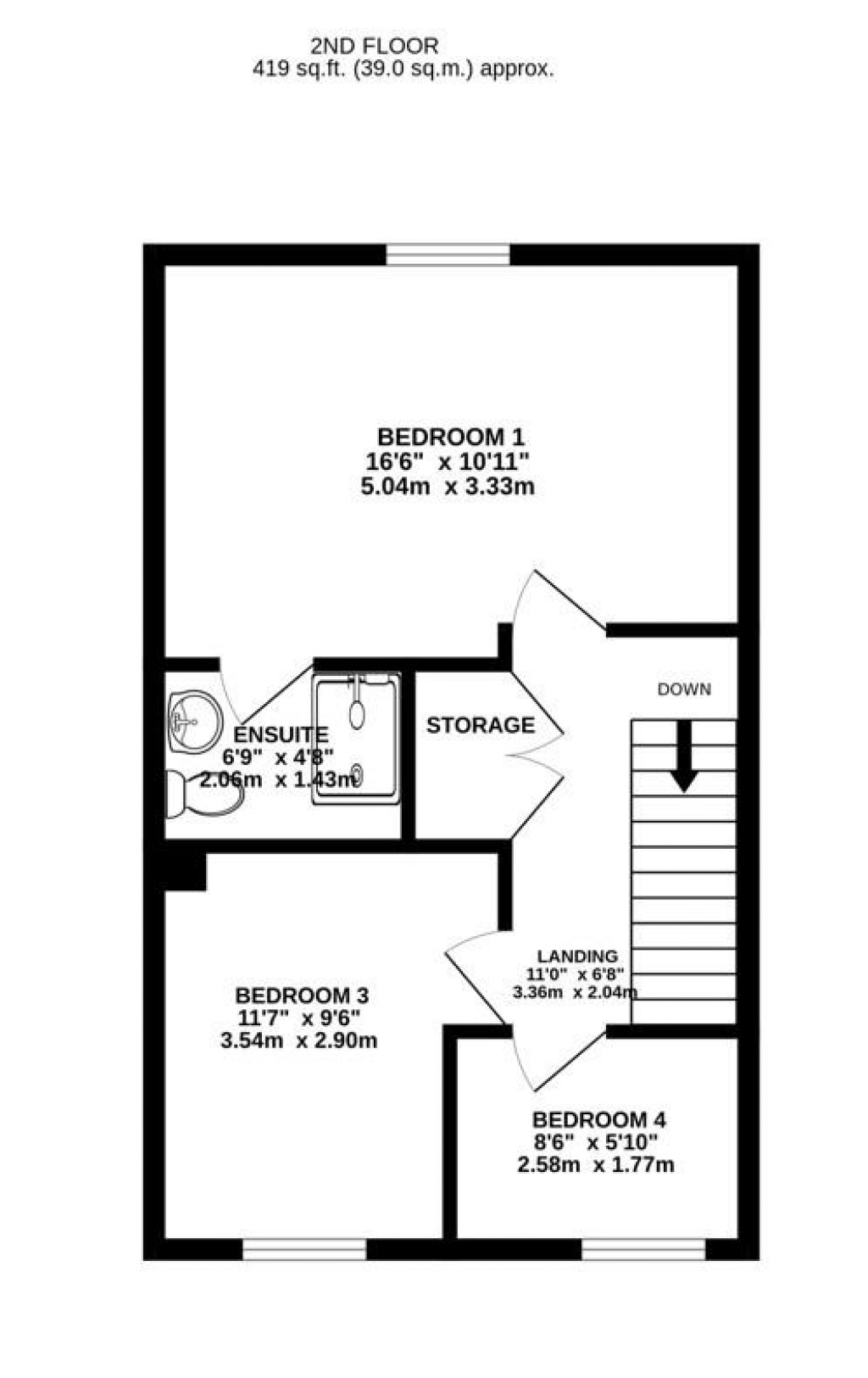
Bedroom One

uPVC double-glazed window to rear elevation. Access to en-suite. Radiator.

En-Suite Shower Room

Low-level WC, wash hand basin and shower. Heated towel rail.

Bedroom Two

uPVC double-glazed window to front elevation. Access to Jack and Jill bathroom. Radiator.

Bedroom Three

uPVC double-glazed window to front elevation. Radiator.

Bedroom Four

uPVC double-glazed window to front elevation. Radiator.

Jack and Jill Bathroom

Low-level WC, wash hand basin and bath with shower over. Heated towel rail.

Outside

The rear garden is fully enclosed and low-maintenance. There is a patio and raised decking area with an outlook over local fields. At the front of the property there is driveway parking for two vehicles.

Location

The property is situated in the popular village of Eastington. It is positioned West of Stonehouse town and is extremely convenient for Junction 13 of the M5 motorway, the A38 and the A419 roads. There are useful facilities within Eastington such as a Community Centre, Village Hall, Co-op, post office, The Old Badger pub and The Lazy Goose café. The property is located within the catchment area for Eastington Primary School with further schools just a short drive away. For further amenities and facilities, Stonehouse town is close by and provides a train Station which has a mainline to London Paddington.

Material Information

Tenure: Freehold.
Council tax band: C.
Local authority and rates: Stroud District Council - £2,002.44 (2025/26).
Electricity supply: mains.
Water supply: mains.
Sewerage: mains.
Heating: gas central heating.
Broadband speed: 5 Mbps (basic), 80 Mbps (superfast) and 10,000 Mbps (ultrafast).
Mobile phone coverage: EE, Three, O2 and Vodafone.

Floorplans For Bradestones Way, Stonehouse Floorplans For Bradestones Way, Stonehouse Floorplans For Bradestones Way, Stonehouse Floorplans For Bradestones Way, Stonehouse
EPC For Bradestones Way, Stonehouse
Arrange a viewing for Bradestones Way, Stonehouse

For further details on this property please call us on:
01453 827640

Property Brochure Download PDF Arrange Viewing