2 1 1

2 bed Bungalow - Semi Detached - For Sale
Ryelands Road, Stonehouse
£240,000

  • Semi-detached bungalow with potential to extend (subject to planning permission)
  • Two good size bedrooms
  • Opportunity to add your own stamp with lots of potential to add value and create more square footage (subject to planning permission)
  • Mature and generously sized rear garden with array of greenery and plants with an overall plot size of 0.10 acres
  • Driveway parking for two vehicles with a single garage
  • Popular location in Stonehouse
  • CHAIN FREE
  • Freehold
  • Council tax band B (£1,883.49)
  • EPC rating E52
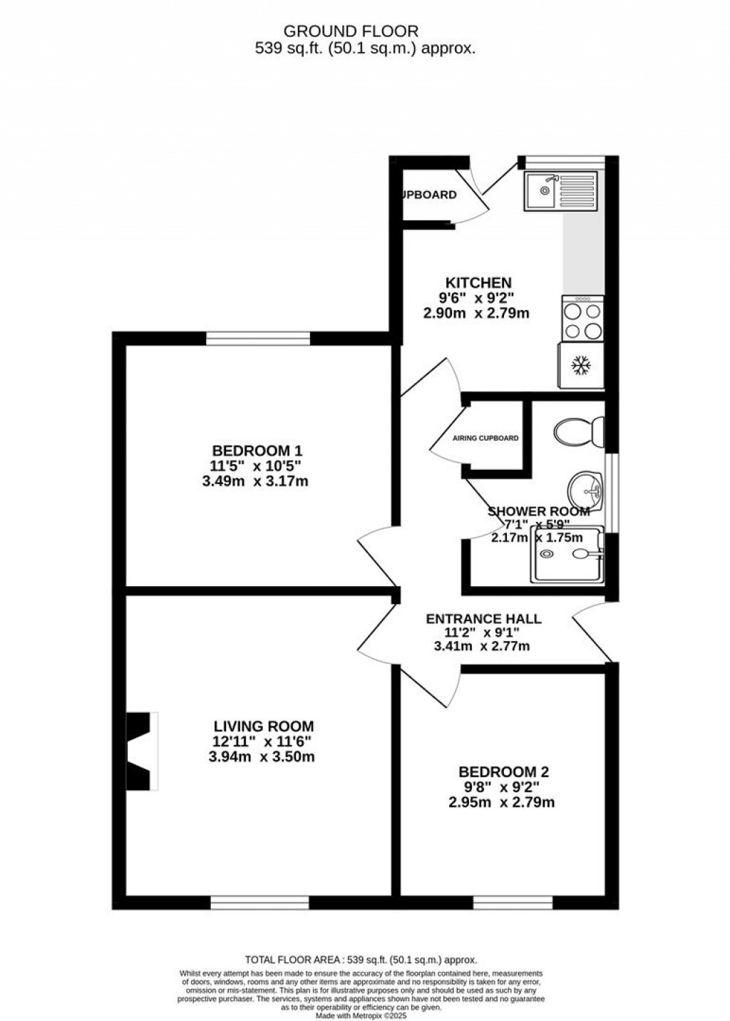
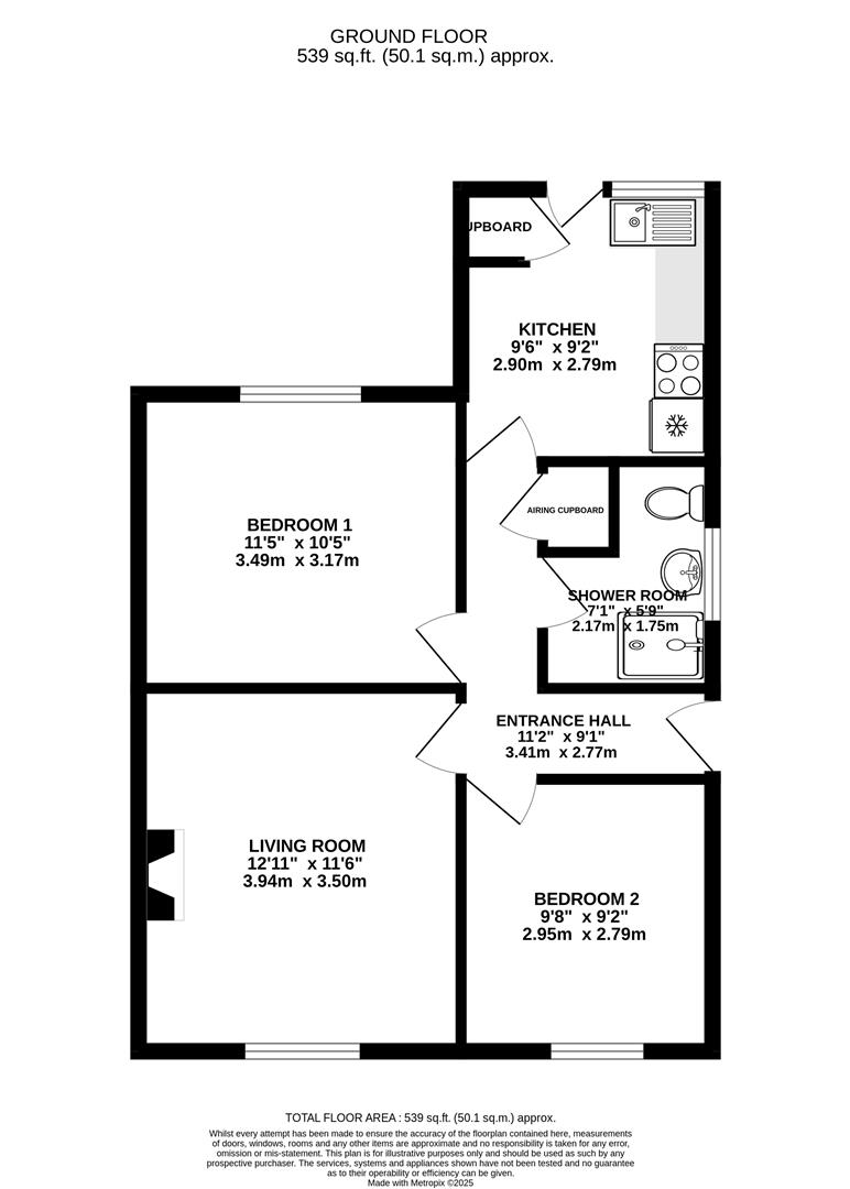
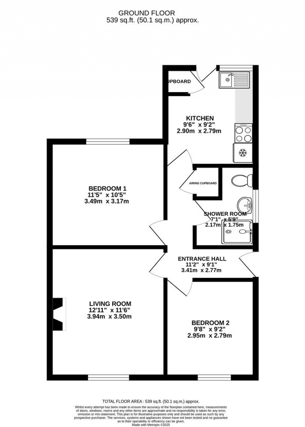
Located on the charming Ryelands Road in Stonehouse, this semi-detached bungalow offers an opportunity to add your own stamp with extension potential (subject to planning permission). The property features two bedrooms, a living room, kitchen and shower room. The generous garden offers an array of plants and greenery, as well as ample space to make it your own. The front of the property has driveway parking for two vehicles and a single garage. Situated in a friendly neighbourhood, this bungalow is close to local amenities, parks, and transport links, making it an excellent choice for those who appreciate both tranquillity and accessibility. Whether you are looking to downsize or seeking your first home, this property presents a wonderful opportunity to create lasting memories in a lovely setting.

Entrance Hall

Metal door to entrance hall. Access to all accommodation and airing cupboard. Heater.

Living Room

uPVC double-glazed window to front elevation. Fireplace. Heater.

Kitchen

uPVC double-glazed window to rear elevation. Wall and base units with stainless steel sink with mixer tap and drainer. Freestanding cooker with four ring electric hob and fridge/freezer. Plumbing for washing machine. Storage cupboard. Heater.

Bedroom One

uPVC double-glazed window to rear elevation. Heater.

Bedroom Two

uPVC double-glazed window to front elevation. Heater.

Shower Room

uPVC double-glazed window to side elevation. Low-level WC, wash hand basin and shower.

Outside

The property has driveway parking for two vehicles and a detached single garage. There is a mature front garden boasting an array of flowers and greenery. The rear garden has gated access to the front and a path down the garden, it is mostly laid to lawn with a patio space ideal for seating.

Location

The property is located just on the edge of Stonehouse town. Local facilities include a Co-op with a Post Office, restaurants, primary and secondary schools. The property is approximately four miles to Junction 12 of the M5 motorway providing access to Gloucester, Cheltenham and Bristol. Stonehouse railway station has a regular train service to London and Cheltenham. The town is situated approximately three miles west of Stroud and twelve miles south of Gloucester.

Material Information

Tenure: Freehold.
Council tax band: B.
Local authority and rates: Stroud District Council - £1,883.49 (2025/26).
Electricity supply: mains.
Water supply: mains.
Sewerage: mains.
Heating: electric night storage heaters.
Broadband speed: 15 Mbps (basic), 64 Mbps (superfast) and 9,000 Mbps (ultrafast).
Mobile phone coverage: EE, Three, O2 and Vodafone.

Floorplans For Ryelands Road, Stonehouse
EPC For Ryelands Road, Stonehouse
Arrange a viewing for Ryelands Road, Stonehouse

For further details on this property please call us on:
01453 827640

Property Brochure Download PDF Arrange Viewing