2 1 1

2 bed Apartment - Let Agreed
Spa Road, Gloucester, GL1
PCM - £1,150pcm Tenant Fees

  • Ground Floor Apartment
  • Two Bedrooms
  • City Centre Location
  • Redecoration throughout and new carpets
  • Allocated Off-street Parking
  • EPC C76
*AVAILBLE MOVE IN FOR NEXT WEEK*
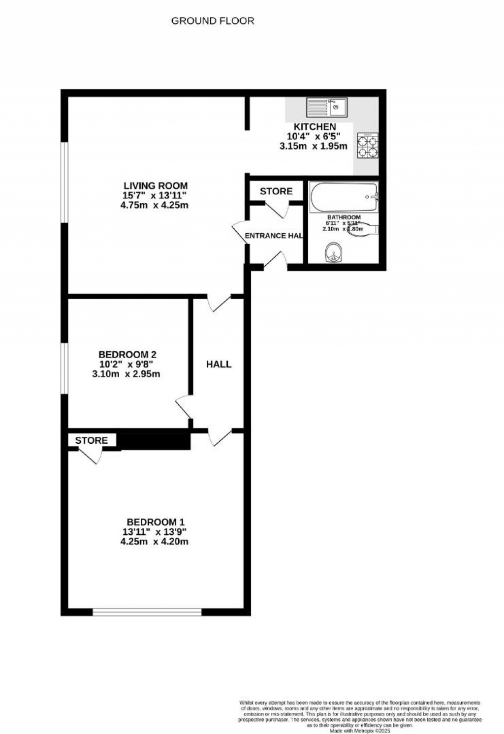
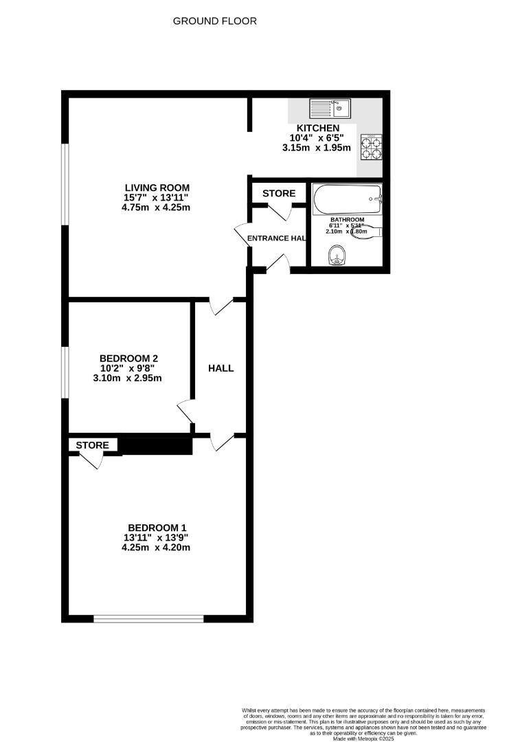
This two bedroom apartment within a converted Grade II listed building which was formerly known as the City's Registry Office. The two bedroom property offers a large living area with open plan kitchen, two double bedrooms and bathroom. The property offers an allocated off street parking space, gas central heating and is in within close proximity to the Gloucester Quays Outlet. This property has recently undergone redecoration throughout and new carpets.

This property is available now and is managed by the Landlord. There is a restriction of no pets or smokers.

Services & Material Information

Rent: £1,150 per calendar month
Holding Deposit: £265 based on 1 weeks’ rent of asking price
Security Deposit: £1,326 based on 5 weeks’ rent of asking price
Council tax band: B
Local authority and rates: Gloucester City Council - £1,741.26 25/26
Property construction:
Electricity supply: Mains
Water supply: Mains
Sewerage: Mains
Heating: Gas Mains
Broadband speed: Standard 17 Mbps, Ultrafast 1000 Mbps
Mobile phone coverage: EE, Three, O2 & Vodafone

Agent Notes

This property is only offered on a twelve month tenancy agreement.

Floorplans For Spa Road, Gloucester, GL1
EPC For Spa Road, Gloucester, GL1
Arrange a viewing for Spa Road, Gloucester, GL1

For further details on this property please call us on:
01452 398010

Property Brochure Download PDF