1 1 1

1 bed Apartment - Let Agreed
Merchants Quay, Gloucester Docks, Gloucester
PCM - £895pcm Tenant Fees

  • One Bedroom
  • Modern Apartment
  • Integrated Kitchen Appliances
  • Gas Central Heating
  • Secure Allocated Parking
  • EPC B83
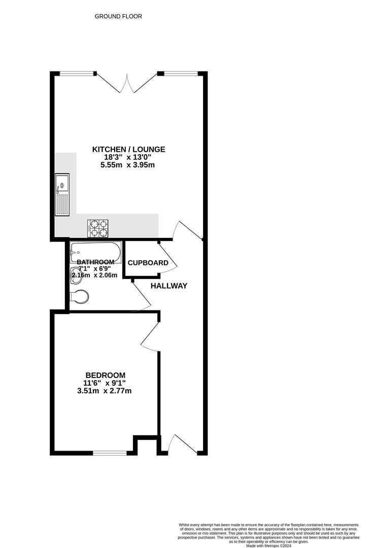
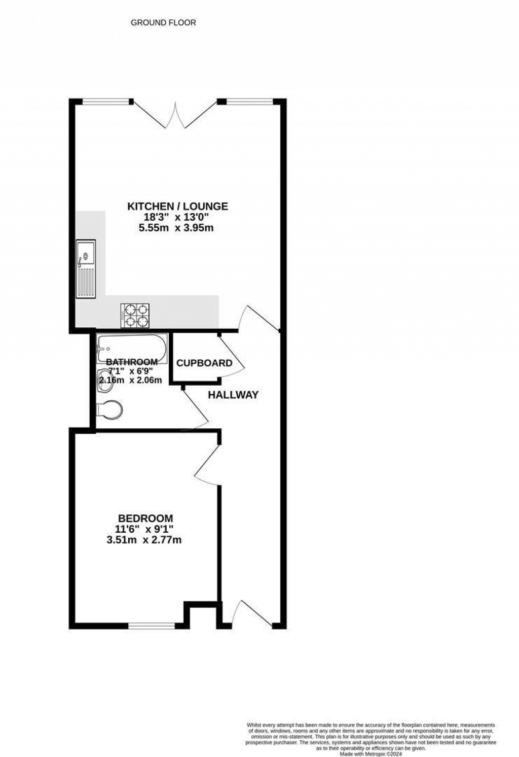
A third floor one bedroom apartment in the modern Merchants Quay building benefiting from high quality fixtures and fittings. The apartment has gas central heating, integrated kitchen appliances and secure allocated parking. The accommodation comprises: open plan kitchen/living with Juliette Balcony, bedroom and modern bathroom.

This property is available late October and is managed by Naylor Powell. There is a restriction of no pets or smokers.

Services & Material information

Rent: £895 per calendar month
Holding Deposit: £206 based on 1 weeks’ rent of asking price
Security Deposit: £1,032 based on 5 weeks’ rent of asking price
Council tax band: B
Local authority and rates: Gloucester City Council £1662.93 23/24
Property construction: Steel frame with brick slip & timber cladding.
Electricity supply: Mains
Water supply: Mains
Sewerage: Mains
Heating: Gas Central Heating
Broadband speed: i.e Standard 18 Mbps, Superfast 80 Mbps
Mobile phone coverage: i.e EE(Limited) Three, O2(Limited), Vodaphone(Limited)

Floorplans For Merchants Quay, Gloucester Docks, Gloucester
EPC For Merchants Quay, Gloucester Docks, Gloucester
Arrange a viewing for Merchants Quay, Gloucester Docks, Gloucester

For further details on this property please call us on:
01452 398010

Property Brochure Download PDF