2 1 1

2 bed Flat - Let Agreed
Longhorn Avenue, Gloucester, GL1
PCM - £1,000pcm Tenant Fees

  • Two bedroom apartment
  • First floor apartment
  • Redecoration throughout
  • Gas central heating
  • Allocated parking
  • EPC C80
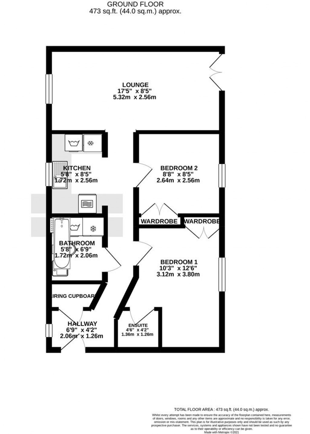
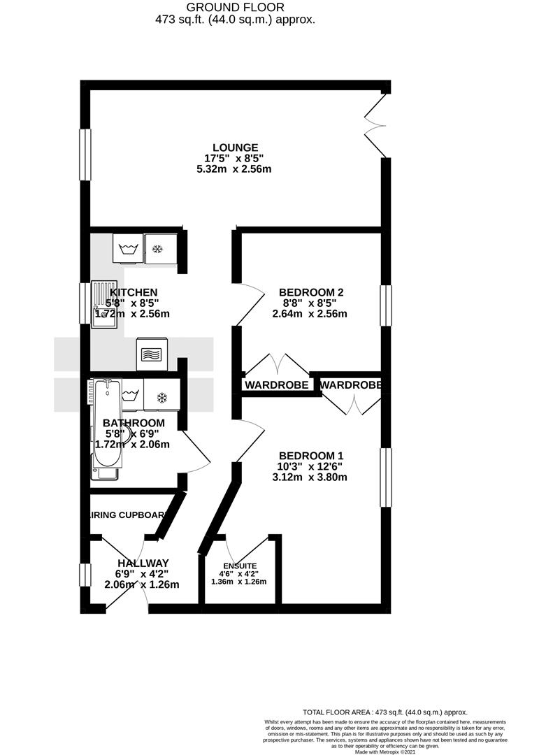
An immaculate two bedroom apartment in the popular 'Market Place' development. The property comprises; two bedrooms, kitchen, living room and bathroom. The property further benefits from integrated kitchen appliances, built in wardrobes to both bedrooms and off road parking for one vehicle.

This property is available late October and is managed by Naylor Powell. There is a restriction of no pets or smokers.

Services & Material Information

Rent: £1000 per calendar month
Holding Deposit: £230 based on 1 weeks’ rent of asking price
Security Deposit: £1153 based on 5 weeks’ rent of asking price
Council tax band: B
Local authority and rates: Gloucester City Council £1,741.26 25/26
Electricity supply: Mains
Water supply: Mains
Sewerage: Mains
Heating: Gas Central
Broadband speed: Standard 11 Mbps, Superfast 80 Mbps
Mobile phone coverage: EE(Likely), Three(Likely), O2(Likely) & Vodafone(Likely)

Floorplans For Longhorn Avenue, Gloucester, GL1
EPC For Longhorn Avenue, Gloucester, GL1
Arrange a viewing for Longhorn Avenue, Gloucester, GL1

For further details on this property please call us on:
01452 398010

Property Brochure Download PDF