3 2 1

3 bed House - Detached - For Sale
Goldfinch Edge, Cam, Dursley
£375,000

  • Detached property built in 2021
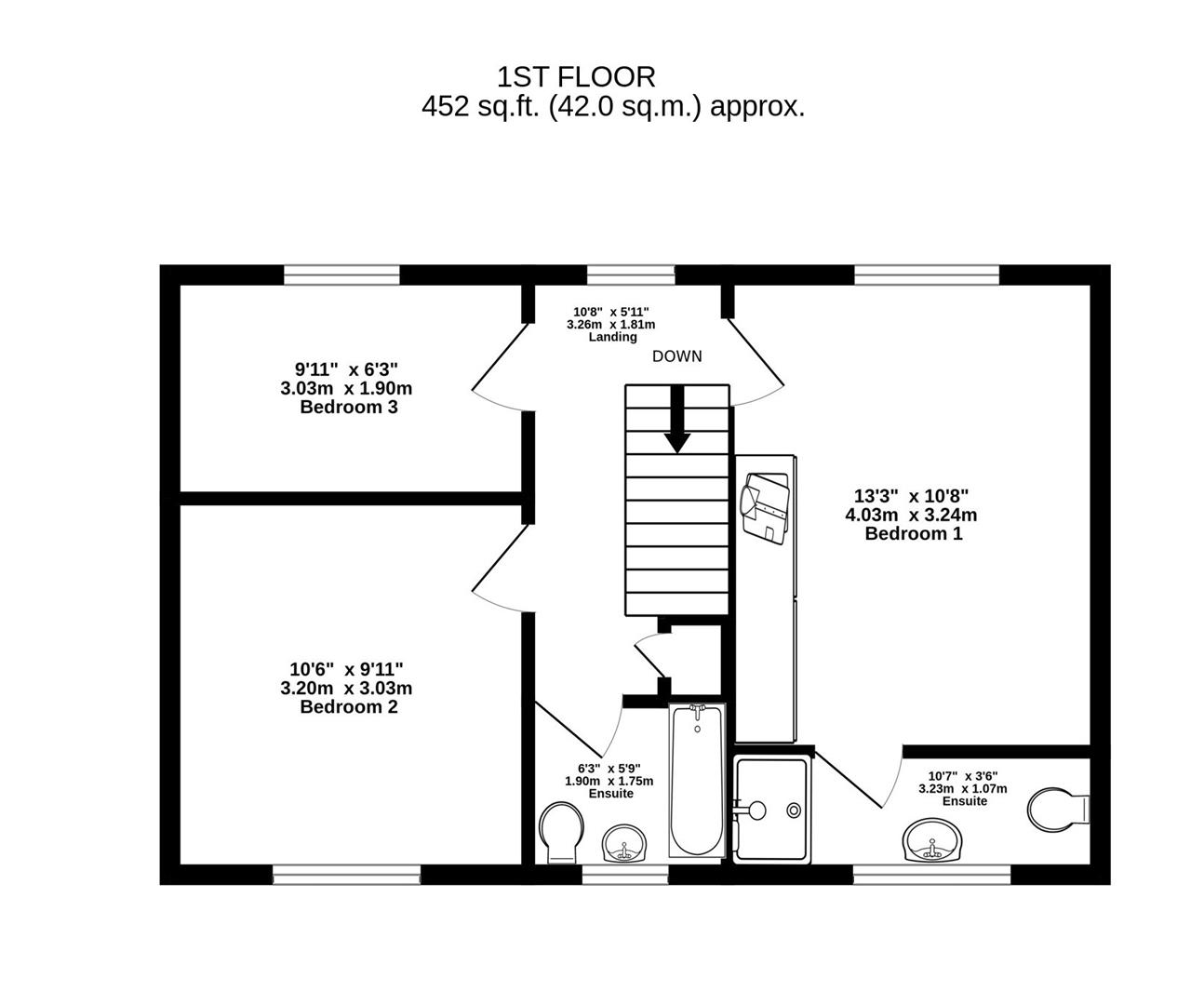
  • Two double bedrooms and a single bedroom
  • Ensuite to master bedroom
  • Enclosed rear garden
  • Detached single garage and driveway parking for two vehicles
  • 6 years remaining on the NHBC warranty
  • Within close proximity to Cam train station
  • Freehold
  • Council tax band D (£2,342.89)
  • EPC rating A93
Situated in a cul-de-sac location within the Newlands Home development in Cam, this immaculately presented detached property offers some great space with a dual aspect living room and a spacious kitchen diner and a separate utility and WC. On the first floor, there are two double bedrooms and a single, with ensuite to master and a family bathroom. The enclosed rear garden offers a great entertainment space with a tree lined rear fence making the area private. There is a detached garage and driveway parking for two vehicles. There are six years remaining on the NHBC warranty.

Entrance Hall

Composite front door with access to living room, kitchen/diner and cloakroom/utility, and stairs rising to the first floor. Cupboard and radiator.

Living Room

uPVC double-glazed window to the front aspect and uPVC double-glazed French doors to the rear with access to the garden. Radiator.

Kitchen/Diner

uPVC double-glazed window to the front elevation and uPVC double-glazed French doors to the rear. There are a range of wall and base units and integrated appliances to include a five ring gas hob, fridge freezer and dishwasher. There is a one and a half bowl sink with mixer tap. Radiator.

Cloakroom/Utility Room

uPVC double-glazed window to the rear, worktop to include sink with mixer tap and a wall mounted cupboard. There is plumbing for an under-counter washing machine and tumble drier. Low level WC and radiator.

Bedroom One

uPVC double-glazed window to rear with built-in wardrobes and access to the en-suite shower room. Radiator.

En-Suite Shower Room

uPVC double-glazed window to the front, with low level WC, pedestal wash handbasin, shower cubicle and heated towel rail.

Bedroom Two

uPVC double glazed window to the front elevation, radiator.

Bedroom Three

uPVC double-glazed window to the rear, radiator.

Bathroom

uPVC double-glazed window to the front, low level WC, vanity sink, bath with shower over and heated towel rail.

Outside

To the front of the property, there is a low hedge, with paved path. The driveway to the side of the property provides off-road parking for two vehicles. There is a detached garage with gated access from the driveway to the rear garden, which is mainly laid to lawn. There is a patio area as well as a gravelled area

Location

Cam offers a community feel and provides for most of your shopping requirements by way of a supermarket, two pubs and a national award winning butchers. There are also a wide range of sports clubs, leisure facilities and public play areas. Cam has good motorway access by way of the M5, providing good links to Bristol, Gloucester and Cheltenham. Cam and Dursley train station is nearby offering local services to Bristol, Gloucester and beyond. There are plenty of primary schools to choose from as there are five in the local area, Rednock School also offers secondary education.

Material Information

Tenure: Freehold.
There is an annual service charge of approximately £340 paid to BNS.
Council tax band: D.
Local authority and rates: Stroud District Council - £2,342.89 (2025/26).
Electricity supply: mains.
Water supply: mains.
Sewerage: mains.
Heating: gas central heating.
Broadband speed: 17 Mbps (basic) And 1,800 Mbps (ultrafast).
Mobile phone coverage: EE, Three, O2 and Vodafone.

Floorplans For Goldfinch Edge, Cam, Dursley Floorplans For Goldfinch Edge, Cam, Dursley Floorplans For Goldfinch Edge, Cam, Dursley
EPC For Goldfinch Edge, Cam, Dursley
Arrange a viewing for Goldfinch Edge, Cam, Dursley

For further details on this property please call us on:
01453 827640

Property Brochure Download PDF Arrange Viewing