3 2 3

3 bed House - Semi-Detached - Sold Subject to Contract
Kings Road, Stonehouse
£379,950

  • Extended and updated semi-detached house
  • Three bedrooms to include master bedroom with dressing room
  • Social kitchen/diner/family room with snug/study
  • Side extension currently utilised as a gym with a shower room
  • South facing rear garden with total plot of 0.12 acres
  • Off road parking for several vehicles
  • Chain free
  • Freehold
  • Council tax band D (£1,883.49)
  • EPC rating C78
Delightful semi-detached, three bedroom home offering a perfect blend of versatile accommodation and modern family living. The property has been extended and renovated by the current owners creating an ideal space for those seeking extra space. The inviting entrance hall provides access to the inner hallway and gym. The inner hallway leads to the living room with wood burning stove, social kitchen/diner and cloakroom. The kitchen/diner also offers a snug that could be used as a study and utility cupboard, as well as bi-folding doors to the garden. The substantial side extension was added in 2023 and is currently being utilised as a gym, it offers a versatile and light space with a shower room, providing the opportunity to use the room as a workspace or additional reception room. Upstairs there are three double bedrooms, off the master is a dressing room. There is also a family bathroom. Externally, the generous rear garden is south facing and there is ample off road parking for several vehicles with an EV charging point. The property is being offered to the market CHAIN FREE.

Entrance Hall

Composite door to entrance hall with uPVC double-glazed windows either side. Access to hallway and gym. Radiator.

Hallway

Access to living room, kitchen/diner, under-stairs storage cupboard and stairs rising to the first floor. Radiator.

Living Room

Two uPVC double-glazed windows to front elevation. Wood burning stove. Radiator.

Kitchen/Diner

uPVC double-glazed window to rear elevation, double-glazed skylight and uPVC double-glazed bi-folding doors to garden. Range of wall and base units with appliances to include one and a half bowl sink with mixer tap and drainer and integrated dishwasher. Space for a fridge/freezer and Range style cooker. Access to utility cupboard and snug. Radiator.

Utility Cupboard

Plumbing for washing machine.

Cloakroom

Low-level WC and wash hand basin. Heated towel rail.

Second Reception Room

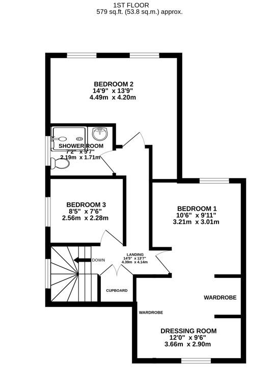
uPVC double-glazed bi-folding doors to garden and two double-glazed skylights. Access to shower room. The space was added in 2023 and is currently being used as a gym, it presents the opportunity to be utilised as many other things, for example a home working space or a further reception room.

Shower Room

Low-level WC, wash hand basin and shower.

Bedroom One

uPVC double-glazed window to rear elevation. Access to dressing room. Radiator.

Dressing Room

uPVC double-glazed window to front elevation. Wardrobes. Radiator. This was originally the fourth bedroom and can be put back to this if needed.

Bedroom Two

Two uPVC double-glazed windows to front elevation. Radiator.

Bedroom Three

uPVC double-glazed window to side elevation. Radiator.

Outside

The front of the property has a driveway for several vehicles and steps down to the front door, there is the added benefit of an EV charging point. The rear garden is South facing and mostly laid to lawn, there is a patio area ideal for entertaining. Further down the garden is a pergola, currently utilised with a hot tub. There is a generous storage shed and power throughout the garden.

Location

The property is located on the edge of Stonehouse town. Local facilities and amenities include a Co-op with post office, restaurants, and primary and secondary schools. The property is approximately near to Junction 12 of the M5 motorway, providing access to Gloucester, Cheltenham, and Bristol. Stonehouse railway station has a regular train service to London and Cheltenham. The town is situated approximately three miles west of Stroud and twelve miles south of Gloucester. A wider range of facilities are available in nearby Stroud to include several state and private schools, restaurants and public houses, an award-winning weekly farmers market, leisure, and sports centre and a main line railway station with intercity services.

Material Information

Tenure: Freehold.
Council tax band: B.
Local authority and rates: Stroud District Council - £1,883.49 (2025/26).
Electricity supply: mains.
Water supply: mains.
Sewerage: mains.
Heating: gas central heating.
Broadband speed: 14 Mbps (basic) and 80 Mbps (superfast).
Mobile phone coverage: EE, Three, O2 and Vodafone.

Floorplans For Kings Road, Stonehouse Floorplans For Kings Road, Stonehouse Floorplans For Kings Road, Stonehouse
EPC For Kings Road, Stonehouse
Arrange a viewing for Kings Road, Stonehouse

For further details on this property please call us on:
01453 827640

Property Brochure Download PDF Arrange Viewing