1 1 1

1 bed Maisonette - Upper - For Sale
Hawthorn Rise, Stroud
£105,000

  • First floor mainsonette
  • Double bedroom
  • Garden space located out the front of the property
  • One allocated parking space
  • Opportunity to add your own stamp
  • Chain free
  • Ground rent of approximately £15 per annum
  • Leasehold - 999 years from December 1977 with 978 years remaining
  • Council tax band A (£1,517.75)
  • EPC rating TBC
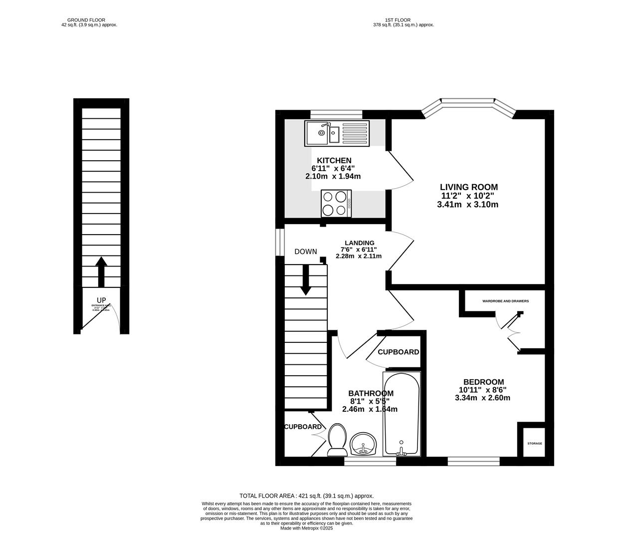
One bedroom maisonette situated in the popular Hawthorn Rise, the property offers the opportunity to add your own stamp. The property has generous accommodation throughout to include a living/dining room, kitchen and bathroom as well as a double bedroom. There is one allocated parking space and a front garden laid to lawn. The maisonette is ideal for those looking to make a property their own and is being offered to the market CHAIN FREE.

Entrance Hall

uPVC double-glazed door to entrance hall and stairs rising to the first floor.

Landing

Single-glazed window to side elevation. Access to accommodation. Electric heater.

Living Room/Diner

Single-glazed Bay window with metal secondary glazing to front elevation. Electric heater.

Kitchen

Single-glazed window to rear elevation with metal secondary glazing. Range of wall and base units with appliances to include stainless steel one and a half bowl sink with mixer tap and drainer, four ring electric hob and oven and plumbing for washing machine.

Bedroom

Single-glazed window to front elevation with metal secondary glazing. Fitted wardrobes and chest of drawers.

Bathroom

Single-glazed window to front elevation. Low-level WC, wash hand basin and bath. Two storage cupboards.

Outside

The property has one allocated off road parking space. The front garden is laid to lawn.

Location

The property is located in Cashes Green, there are local amenities such as the Co-Operative supermarket, coffee bars, and hairdressers. Foxmoor Primary School is within walking distance. Other schools such as Cashes Green Primary School, Archway Secondary School, Marling Grammar for boys and Stroud High for Girls can be found nearby.

Material Information

Tenure: Leasehold - 999 years from December 1977 with 978 years remaining.
Ground rent: approximately £15 per annum.
Council tax band: A.
Local authority and rates: Stroud District Council - £1,517.75 (2025/26).
Electricity supply: mains.
Water supply: mains.
Sewerage: mains.
Heating: electric.
Broadband speed: 7 Mbps (basic) and 68 Mbps (superfast).
Mobile phone coverage: EE, Three (Limited), O2 (Limited) and Vodafone (Limited).

Floorplans For Hawthorn Rise, Stroud Floorplans For Hawthorn Rise, Stroud Floorplans For Hawthorn Rise, Stroud
Arrange a viewing for Hawthorn Rise, Stroud

For further details on this property please call us on:
01453 827640

Property Brochure Download PDF Arrange Viewing