4 2 1

4 bed House - Mid Terrace - Sold Subject to Contract
De Lisle Bush Way, Great Oldbury, Stonehouse
50% Shared Ownership - £155,000

  • 50% shared ownership mid-terrace town house
  • Four generous bedrooms to include master with en-suite
  • Enclosed and low-maintenance rear garden
  • Two off road parking spaces and ample on road spaces
  • Approximately 8 years remaining on the NHBC warranty
  • Service charge of approximately £317.00 per annum
  • Chain free
  • Leasehold - 999 years beginning 10/05/2024 with 998 years remaining.
  • Council tax band D (£2,315.78)
  • EPC rating B85
Generous four bedroom, mid-terrace town house offered on a 50% shared ownership scheme. The property is spread across three floors and ideal for the ever growing family. On the ground floor there is the entrance hall, living room, kitchen/diner and cloakroom. The first floor has two double bedrooms, one single bedroom and the family bathroom. The master bedroom is on the second floor with an en-suite shower room. The rear garden is fully enclosed and low-maintenance, there is also two off-road parking spaces. The property is being marketed CHAIN FREE.

Entrance Hall

Composite door to entrance hall. Access to living room, kitchen/diner, cloakroom and stairs rising to the first floor. Radiator.

Living Room

uPVC double-glazed window to rear elevation and uPVC double-glazed French doors to rear garden. Radiator.

Kitchen/Diner

uPVC double-glazed window to front elevation. Range of wall and base units with appliances to include stainless steel sink with mixer tap and drainer, four ring gas hob and oven. Space for further appliances to include fridge/freezer, dishwasher and washing machine. Radiator.

Cloakroom

uPVC double-glazed window to front elevation. Low-level WC and wash hand basin. Radiator.

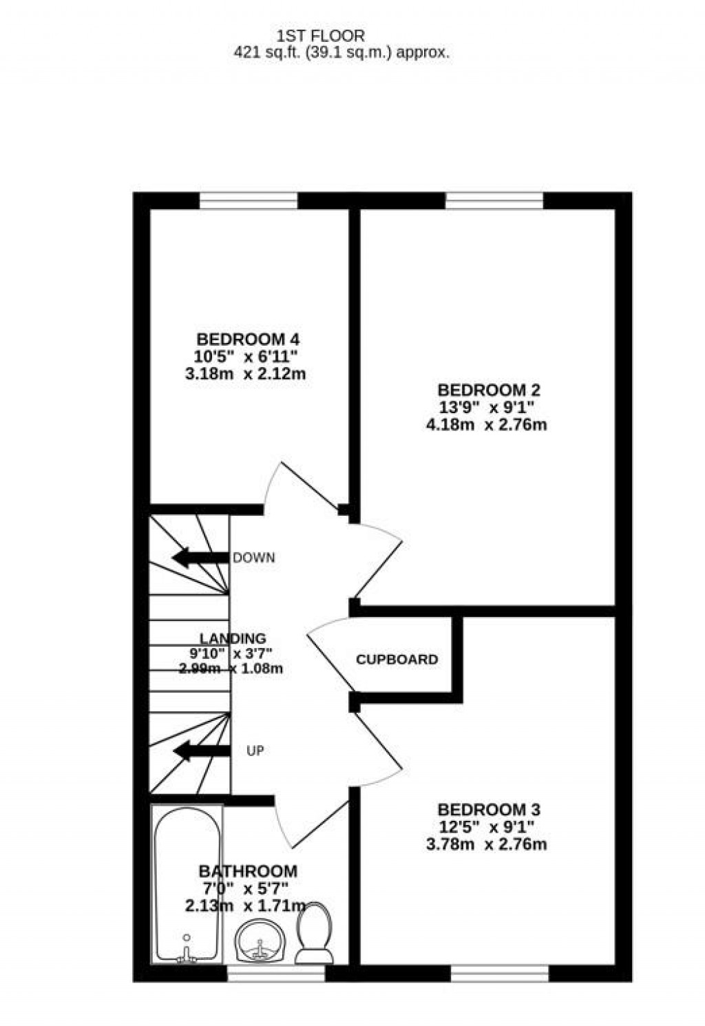
Bedroom One

uPVC double-glazed window to front elevation. Access to en-suite. Radiator.

En-Suite Shower Room

Low-level WC, wash hand basin and shower. Radiator.

Bedroom Two

uPVC double-glazed window to rear elevation. Radiator.

Bedroom Three

uPVC double-glazed window to front elevation. Radiator.

Bedroom Four

uPVC double-glazed window to rear elevation. Radiator.

Bathroom

uPVC double-glazed window to front elevation. Low-level WC, wash hand basin and bath with hand held shower. Radiator.

Outside

The property has two off road tandem parking spaces, one currently houses a storage shed. The rear garden is fully enclosed and laid to Astroturf. There is an additional patio space at the back of the garden along with off the French doors and raised flower beds.

Location

This property is located within the Great Oldbury development which provides ease of access to both Eastington and Stonehouse. Local facilities include a Co-op with a Post Office, restaurants, primary and secondary schools. The property is approximately four miles to Junction 12 of the M5 motorway providing access to Gloucester, Cheltenham and Bristol. Stonehouse railway station has a regular train service to London and Cheltenham. The town is situated approximately three miles west of Stroud and twelve miles south of Gloucester.

Material Information

Tenure: Leasehold - 999 years beginning 10/05/2024 with 998 years remaining.
Approximately 8 years remaining on the NHBC warranty.
Council tax band: D.
Local authority and rates: Stroud District Council - £2,315.78 (2025/26).
Electricity supply: mains.
Water supply: mains.
Sewerage: mains.
Heating: gas central heating.
Broadband speed: 22 Mbps (basic) and 1,800 Mbps (superfast).
Mobile phone coverage: EE, Three, O2 and Vodafone.

Shared Ownership Price Breakdown

The price is based on a RICS valuation for 50%, the 100% share has been valued at £310,000 - no offers above or below the RICS valuation can be accepted

Monthly rental figure alongside any mortgage you may have - £411.73 (This may change if you have moved into a new financial year by the time you complete)
Monthly management charge - £26.42 (£317 per annum - reviewed annually)

All information has been taken from Heylo Housing and more details can be found at www.homereach.org.uk/guides-and-faqs

Shared Ownership Eligibility

- Buyers must be at least 18 years old
- Buyers must have a total household income under £80,000
- Buyers must meet the Homes England affordability and sustainability assessments
- Buyers are expected to use any savings and assets towards the purchase of their home. This may mean selling assets such as bonds, shares, land and any other financial investments.
- Buyers in receipt of benefits are eligible for shared ownership provided they meet the Homes England affordability assessment (not all benefits are eligible)
- Self-employed buyers must be able to provide 2-years evidence of their income
- Buyers must purchase the maximum share they can reasonably afford within the parameters of the Homes England calculator
- Shared owners must be first time buyers or do not own another property in the UK or any other country or have a memorandum of sale for their existing property.
- Buyers must have good credit history and must not have the following (for more information on acceptable credit for Home Reach please refer to the credit policy):
A mortgage or rent arrears
Other bad debts
County Court Judgements
- Buyers must have a minimum 5% deposit towards the share they are purchasing
- Buyers may retain a portion of their savings to cover the costs of purchase and moving home (typically up to £5,000). This may include:
Legal fees
Stamp Duty Land Tax where applicable
Mortgage application fees
Valuation fees and any associated moving costs

All information has been taken from Heylo Housing and more details can be found at www.homereach.org.uk/guides-and-faqs

Required Documents

If your offer is accepted, both Heylo and Naylor Powell require the following:

- Heylo’s privacy policy document – Email from an interested buyer that confirms their understanding of our privacy policy and that it allows Heylo to run hard credit checks. The credit pass/fail policy can be found on our website heylohousing.com. Buyers who fail the credit check will not be able to proceed
- IMA declaration form – Fully completed and signed by the broker. (A qualified IMA, as required by Homes England)
- Homes England calculator in excel format completed by the broker.
- S106 or other eligibility requirements if applicable
- Applicants must be a UK tax payer
- Direct Debit form completed and signed by all buyers
- Verification of Income Documents to include:
3 Months’ pay slips with same employer and any probationary period completed
3 Months’ bank statements
Proof of savings/deposit (e.g. savings account statement. If gifted deposit, you may also be required to provide evidence of the deposit on a benefactor’s bank statement)
Passport/Photo ID (full colour)
2 Years company accounts and/or SA302 Returns (if self-employed or own more than a 25% share in the company)
Credit Report

All information has been taken from Heylo Housing and more details can be found at www.homereach.org.uk/guides-and-faqs

Agents Note

There may be costs associated with purchasing the property and during the conveyancing process from Heylo Housing and Home Reach that Naylor Powell may not be aware of.

Floorplans For De Lisle Bush Way, Great Oldbury, Stonehouse Floorplans For De Lisle Bush Way, Great Oldbury, Stonehouse Floorplans For De Lisle Bush Way, Great Oldbury, Stonehouse Floorplans For De Lisle Bush Way, Great Oldbury, Stonehouse
EPC For De Lisle Bush Way, Great Oldbury, Stonehouse
Arrange a viewing for De Lisle Bush Way, Great Oldbury, Stonehouse

For further details on this property please call us on:
01453 827640

Property Brochure Download PDF Arrange Viewing