2 1 1

2 bed House - Semi-Detached - Sold Subject to Contract
Midland Road, Stonehouse
£215,000

  • Semi-detached house
  • Two double bedrooms
  • External storage space and coal shed
  • Front and rear gardens
  • Ample on street parking available
  • Close to local amenities
  • Chain free
  • Freehold
  • Council tax band A (£1,614.42)
  • EPC rating D60
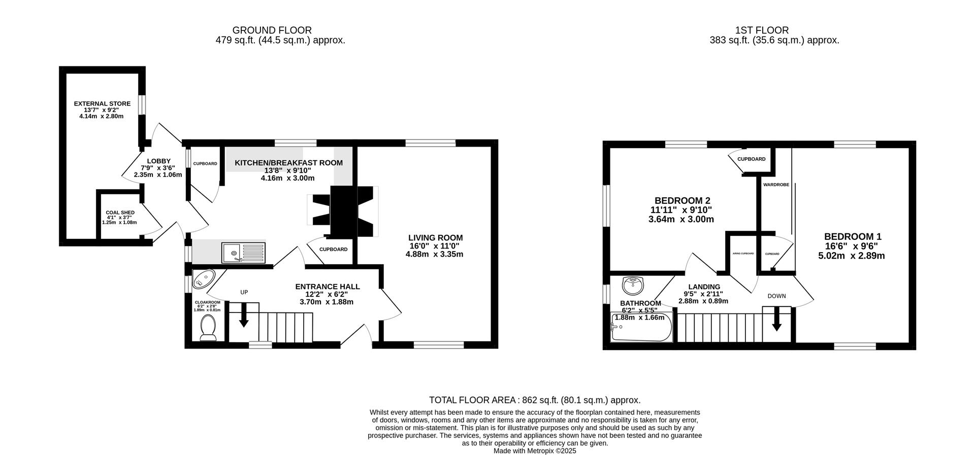
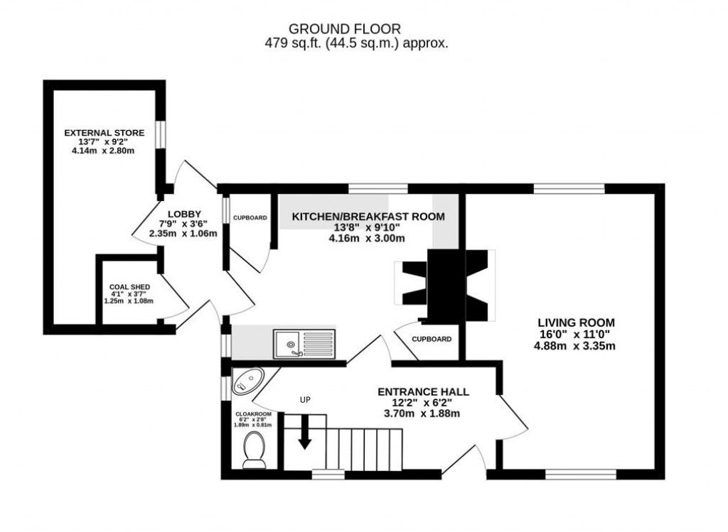
Two bedroom, semi-detached house located within close proximity to local amenities and offering the opportunity to add your own stamp. The property has a dual aspect living room, kitchen with Raeburn and cloakroom. On the first floor are two double bedrooms and the bathroom, the master bedroom has ample storage by way of fitted wardrobes. Externally, the property has both mature front and rear gardens and also benefits from a coal shed and external storage. There is plenty of on street parking available and the property is being offered to the market CHAIN FREE.

Entrance Hall

uPVC single-glazed door and uPVC single-glazed window to front elevation. Access to living room, kitchen, cloakroom and stairs rising to the first floor. Radiator.

Living Room

Two uPVC single-glazed windows to front and rear elevation. Gas fireplace.

Kitchen/Breakfast Room

uPVC single-glazed window to rear elevation and single-glazed window to side elevation. Range of wall and base units with stainless steel sink with mixer tap and drainer. Raeburn cooker. Two storage cupboard. Radiator.

Cloakroom

uPVC single-glazed window to side elevation. Low-level WC and corner wash hand basin. Radiator.

Lobby

uPVC double-glazed door to front garden and wooden door to rear garden. Access to coal shed and external storage.

Bedroom One

Two uPVC single-glazed windows to front and rear elevation. Built-in wardrobes with additional storage cupboard inside. Radiator.

Bedroom Two

Two uPVC single-glazed windows to rear and side elevation. Storage cupboard. Radiator.

Bathroom

uPVC single-glazed window to side elevation. Bath with shower over and wash hand basin. Radiator.

Outside

The property has both front and rear gardens. The front garden is gated and provides access to both the front door and the lobby door, it is mostly laid to lawn with some greenery and plants. The rear garden is enclosed and generous in size, it has patio and lawn and again boasts mature greenery and plants. Off the internal lobby there is a coal shed and external storage, the external storage houses the boiler and has power.

Location

The property is located just on the edge of Stonehouse town. Local facilities include a Co-op with a Post Office, restaurants, primary and secondary schools. The property is approximately four miles to Junction 12 of the M5 motorway providing access to Gloucester, Cheltenham and Bristol. Stonehouse railway station has a regular train service to London and Cheltenham. The town is situated approximately three miles west of Stroud and twelve miles south of Gloucester.

Material Information

Tenure: Freehold.
Council tax band: A.
Local authority and rates: Stroud District Council - £1,614.42 (2025/26).
Electricity supply: mains.
Water supply: mains.
Sewerage: mains.
Heating: gas central heating.
Broadband speed: 14 Mbps (basic), 80 Mbps (superfast) and 10,000 Mbps (ultrafast).
Mobile phone coverage: EE, Three, O2 and Vodafone.

Floorplans For Midland Road, Stonehouse Floorplans For Midland Road, Stonehouse Floorplans For Midland Road, Stonehouse
EPC For Midland Road, Stonehouse
Arrange a viewing for Midland Road, Stonehouse

For further details on this property please call us on:
01453 827640

Property Brochure Download PDF Arrange Viewing