3 2 1

3 bed House - End Terrace - Sold Subject to Contract
Regent Street, Stonehouse
£319,950

  • End-terrace Victorian house
  • Three well-sized bedrooms
  • Extended kitchen/diner
  • Enclosed rear garden with outhouse and external WC
  • Driveway parking for one vehicle
  • Close to Laburnum Park with jungle gym and playground
  • Excellent transport links with easy access to train station
  • Freehold
  • Council tax band C (£2,152.55)
  • EPC rating E43
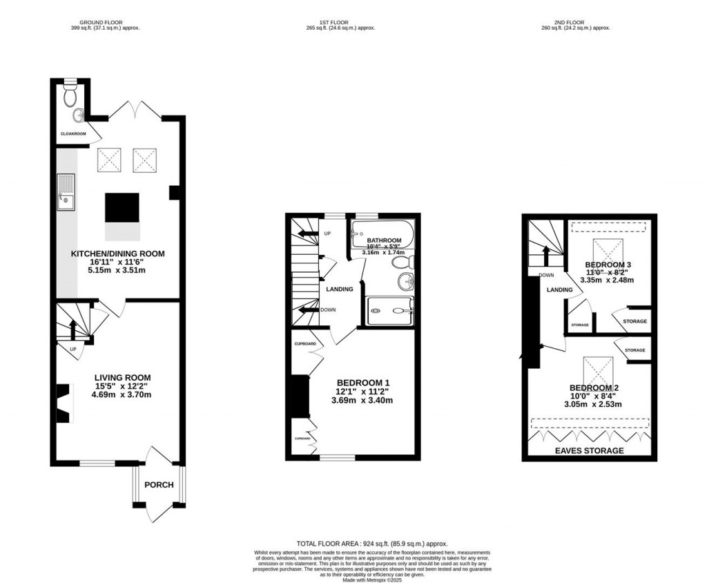
Three bedroom, end-terrace house situated a stone's throw from Stonehouse Town Centre. The well-presented house has accommodation spread across three floors and is tastefully decorated throughout. The hub of the house is the extended kitchen/diner that is full of character and an ideal social space. The living room has a comfy feel with woodburning stove. There are two double bedrooms and one generous single, all with storage cupboards. The property benefits from a generous garden with ample space for growing things and hosting friends and family. Additionally, there is an outhouse that has plumbing for washing machine and an outside WC. There is driveway parking for one vehicle and additional permit parking available, subject to availability and terms.

Porch

Wooden stable door to porch, wooden door to living room and wooden single-glazed windows either side.

Living Room

uPVC double-glazed window to front elevation. Woodburning stove. Access to kitchen, storage cupboard and stairs rising to the first floor. Radiator.

Kitchen/Diner

Two double-glazed Velux windows and uPVC double-glazed French doors to rear garden. Range of wall and base units to include Belfast sink with drainer. Space for Range style oven and freestanding fridge/freezer.

Cloakroom

uPVC double-glazed window to rear elevation. Low-level WC and wash hand basin.

Bedroom One

uPVC double-glazed window to front elevation. Two built-in wardrobes. Fireplace. Radiator.

Bedroom Two

Double-glazed Velux window. Storage cupboard and eaves storage. Radiator.

Bedroom Three

Double-glazed Velux windows. Storage cupboard. Radiator.

Bathroom

uPVC double-glazed window to rear elevation. Low-level WC, wash hand basin, bath and shower. Heated towel rail.

Outbuilding

The property has the additional benefit of an outbuilding. The outbuilding has power and light as well as running water. It is currently being utilised as a utility room with plumbing and space for a washing machine and tumble dryer.

Outside

The property has off road parking for one vehicle. The generous rear garden is enclosed and has side access. The garden is mature and has a potting shed, greenhouse and metal storage shed. As well as the additional out building, there is an external WC.

Location

The property is located in Stonehouse town and is a short drive from both Stroud and Gloucester. Local facilities in the town include a Co-op with a post office, restaurants, a variety of shops, a building society, primary and secondary schools. Stonehouse is an ideal location for commuting and also benefits from a railway station which has regular services to London and Cheltenham as well as regular bus services. Junction 13 of the M5 motorway, is approximately two miles away, providing easy access to Gloucester, Bristol and Cheltenham.

Material Information

Tenure: Freehold.
Council tax band: C.
Local authority and rates: Stroud District Council - £2,152.55 (2025/26).
Electricity supply: mains.
Water supply: mains.
Sewerage: mains.
Heating: gas central heating. The kitchen has underfloor heating powered from the boiler.
Broadband speed: 17 Mbps (basic), 80 Mbps (superfast) and 10,000 Mbps (ultrafast).
Mobile phone coverage: EE, Three, O2 and Vodafone.

Floorplans For Regent Street, Stonehouse Floorplans For Regent Street, Stonehouse Floorplans For Regent Street, Stonehouse Floorplans For Regent Street, Stonehouse
EPC For Regent Street, Stonehouse
Arrange a viewing for Regent Street, Stonehouse

For further details on this property please call us on:
01453 827640

Property Brochure Download PDF Arrange Viewing