3 2 1

3 bed House - Mid Terrace - For Sale
St. Pauls Road, Cheltenham
£310,000

  • Offered with no onward chain
  • Located in a sought-after and convenient central position
  • Attractive three-bedroom family home
  • Private and enclosed rear garden
  • Versatile conservatory providing additional living space
  • En-suite shower room to the master bedroom
  • Within easy reach of the Town Centre, Pittville Park, and The Brewery Quarter
  • Excellent rental potential with an estimated income of around £1,500 per calendar month
  • Cheltenham Borough Council Tax Band B - £1,747.29 (2025/2026)
  • EPC rating C72
Situated in the lively Cheltenham town centre, only moments from the bustling Brewery Quarter, this well-presented three-bedroom terrace combines convenience with comfort, offering spacious and flexible living across three floors. Offered to the market with no onward chain.

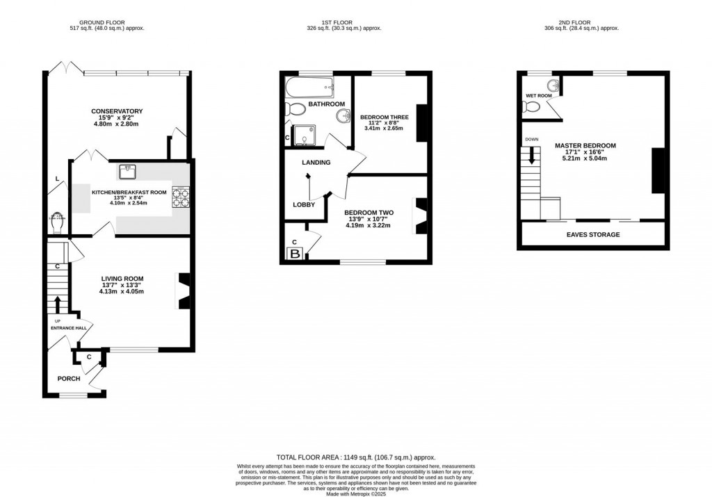
Porch

Welcoming entrance porch with slate tile flooring, side aspect window, and a useful storage cupboard fitted with shelving.

Hall

Offers access to the living room and the staircase to the first floor, highlighted by a copper handrail and a slate-tiled floor.

Living Room

A generously sized space featuring a striking circular fireplace with an oak mantle, two modern vertical radiators, an under-stairs storage cupboard, and a front aspect window allowing natural light to flow through.

Kitchen/Breakfast Room

This charming traditional kitchen offers solid beech wood worktops with a Belfast sink, complemented by a range of floor and eye-level units providing ample storage. Integrated appliances include an electric oven, four-ring gas hob with extractor over, and a fridge. Finished with ceramic tile flooring and a solid beech wood breakfast/dining table. French doors open to the:

Conservatory

A versatile space with ceramic tile flooring, a Victorian-style radiator, and French doors leading to the rear garden. There is also a practical utility cupboard providing space and plumbing for a washing machine and tumble dryer.

WC

Fitted with ceramic tile flooring, WC, and wash hand basin.

First Floor Landing

Provides access to two bedrooms and the family bathroom.

Second Bedroom

A bright front aspect room featuring a period cast iron fireplace, radiator, and built-in cupboard housing the gas combination boiler.

Third Bedroom

Rear aspect window and radiator.

Bathroom

Beautifully appointed with a panelled bath, wash hand basin, tiled shower cubicle, WC, ceramic tiling, built-in storage, engineered oak flooring, and a rear aspect window.

On The Second Floor

Master Bedroom

Spacious, larger than average, and full of character, with a rear aspect window, radiator, and eaves storage. Door to:

En-suite Shower Room

A fully tiled ‘wet room’ with shower, wash hand basin, WC, and obscure rear aspect window.

Outside

To the front of the property, there is on-road permit parking and a part-brick, part-timber-enclosed area leading to the front door.
The rear garden is fully enclosed and features a gated rear access point. A full-width flagstone patio provides excellent outdoor dining space, complemented by a raised timber decking area with a pergola frame perfect for relaxing or entertaining.

Location

Ideally positioned for easy access to Pittville Park, The Brewery Quarter, and Cheltenham Leisure Centre, this superb home combines convenience, character, and modern living. Known as the gateway to the Cotswolds, Cheltenham is celebrated for its vibrant calendar of festivals from the world-famous National Hunt Festival to acclaimed music, drama, science, food, and jazz events. The town offers an extensive range of modern shopping facilities, as well as a wealth of recreational and cultural amenities, including golf courses, a racecourse, theatres, and cinemas. Excellent transport connections via the M5 provide easy access to Bristol and Birmingham, while the mainline railway station offers regular services to London.

Material Information

Tenure: Freehold.
Council Tax Band: Tax Band B
Local Authority and Rates: Cheltenham Borough Council £1,747.29 (2025/2026)
Electricity supply: Mains
Water supply: Mains
Sewerage: Mains
Heating: Mains
Broadband speed: Standard 8 Mbps, Ultrafast 1000 Mbps.
Mobile phone coverage: EE (Limited) O2 (Likely) Vodafone (Limited) and Three (Limited)

Floorplans For St. Pauls Road, Cheltenham Floorplans For St. Pauls Road, Cheltenham Floorplans For St. Pauls Road, Cheltenham Floorplans For St. Pauls Road, Cheltenham
EPC For St. Pauls Road, Cheltenham
Arrange a viewing for St. Pauls Road, Cheltenham

For further details on this property please call us on:
01452 941950

Property Brochure Download PDF Arrange Viewing