3 1 1

3 bed House - Mid Terrace - Let Agreed
Chester Close, Apperley, Gloucester
PCM - £975pcm Tenant Fees

  • Semi-Detached House
  • Three Bedrooms
  • Village Location
  • Single Garage
  • Driveway for One Vehicle
  • EPC D64
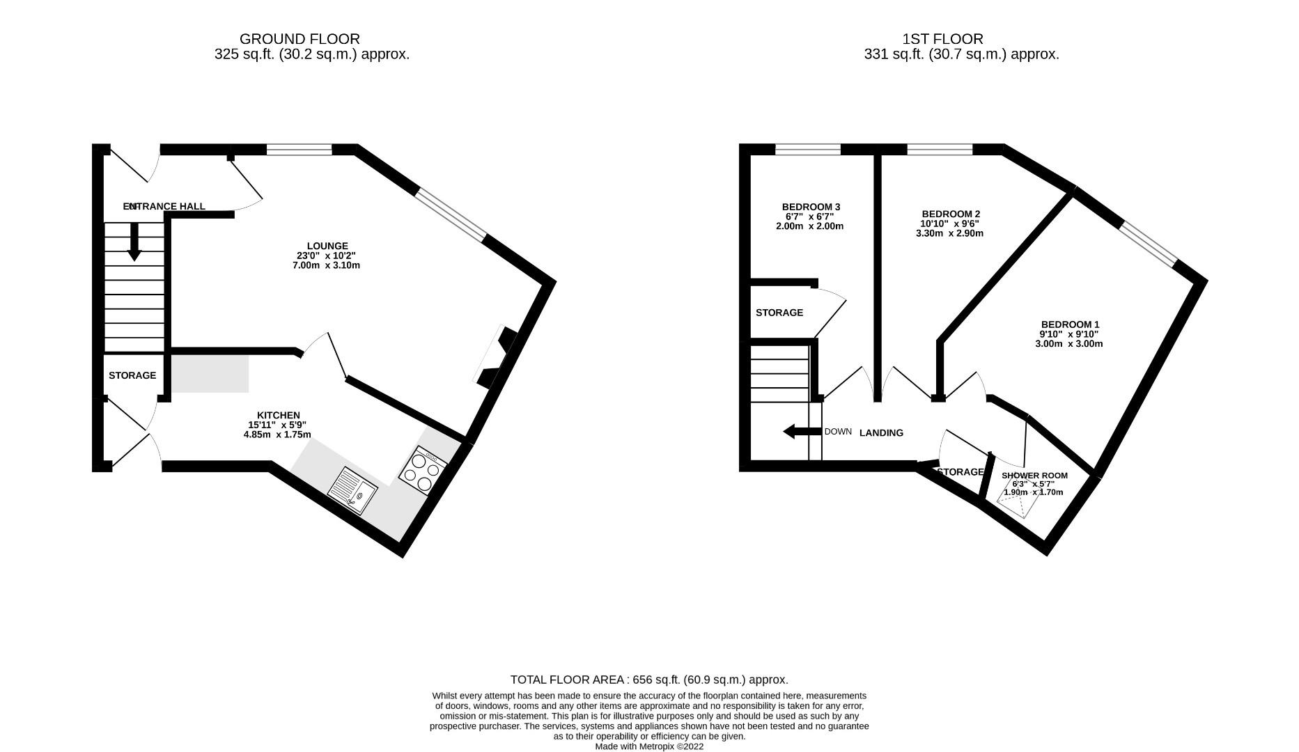
This three bedroom, semi-detached house located in the rural village of Apperley. The accommodation comprises a kitchen, living room, three bedrooms and modern shower room. This property has been recently redecorated, has a modern kitchen and shower room, enclosed rear garden and single garage with driveway for one vehicle.

This property is available late November and is managed by Naylor Powell. There is a restriction of no pets or smokers.

Services & Material Information

Rent: £975 per calendar month
Holding Deposit: £225 based on 1 weeks’ rent of asking price
Security Deposit: £1125 based on 5 weeks’ rent of asking price
Council tax band: C
Local authority and rates: Tewkesbury Borough Council, £1,932.31 25/26
Electricity supply: Mains
Water supply: Mains
Sewerage: Mains
Heating: Gas Central heating
Broadband speed: i.e Basic 1 Mbps, Ultrafast 1000 Mbps
Mobile phone coverage: i.e Three(Likely), EE(Likely), Vodafone(Likely), O2(Limited)

Floorplans For Chester Close, Apperley, Gloucester
EPC For Chester Close, Apperley, Gloucester
Arrange a viewing for Chester Close, Apperley, Gloucester

For further details on this property please call us on:
01452 398010

Property Brochure Download PDF