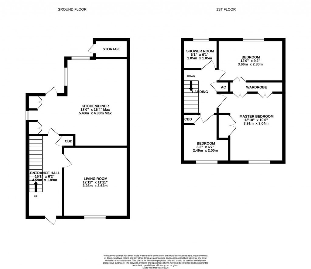
Tiled flooring, stairs to first floor with cupboard under, further storage cupboard and doors leading off.
Light and bright room with large window to the front aspect. Feature fireplace.
Extended and well appointed space with the tiled flooring continuing from hall throughout the room. In the dining area there is a utility cupboard with plumbing for washing machine and space for drier, window to the side aspect, door to the rear garden. The kitchen boasts a range of base and wall mounted units, cupboards and drawers with rolled edge worktops. There is a stainless steel sink unit and plumbing for a dishwasher. Two windows to the rear allow in lots of natural light.
Access to loft space and airing cupboard. Doors leading off.
Ample built in wardrobe and storage space, window to the front aspect.
Further built in wardrobe space and window to the rear aspect.
Built in over stair storage and window to front aspect.
Fully tiled walls, walk in shower enclosure with direct feed shower, WC and wash basin with cupboard under, heated towel rail and frosted window to rear aspect.
To the front of the home is garden laid to lawn and enclosed by fencing with mature bed to one side and path leading to front door. The rear garden offers a low maintenance space with raised gravelled patio, path leading to covered seating area, ideal for al fresco dining. There is also a brick built garden store.
Newent originally called Noent is a small market town about 8 miles north west of Gloucester, on the northern edge of the Forest of Dean. The town includes a half-timbered market house, plus other houses of historical nature and Newent Lake a large picturesque lake in the centre of the town, originally part of the Newent Court Estate. Newent is served by three schools, doctors’ surgery and dentist, Sports & Leisure Centre. Excellent motorway links to the M50 & M5
Tenure: Freehold
Council tax band: B
Local authority and rates: Forest of Dean District Council £1,878.47 (2024/25)
Electricity supply: Mains
Water supply: Mains
Sewerage: Mains
Heating: Gas
Broadband speed: Basic 15 Mbps, Superfast 80 Mbps 
Mobile phone coverage: EE, Vodaphone, O2, Three
 
						
						For further details on this property please call us on:
							01531 828970