3 1 1

3 bed House - Mid Terrace - Sold Subject to Contract
Seven Waters, Leonard Stanley, Stonehouse
£285,000

  • Mid-terrace house with far reaching views
  • Three bedrooms
  • Recently modernised and well-presented throughout to include new carpets
  • Front and rear garden with the opportunity to add your own stamp
  • On street parking available
  • Close proximity to local walks
  • Sought after village of Leonard Stanley
  • Freehold
  • Council tax band B (£1,792.54)
  • EPC rating C70
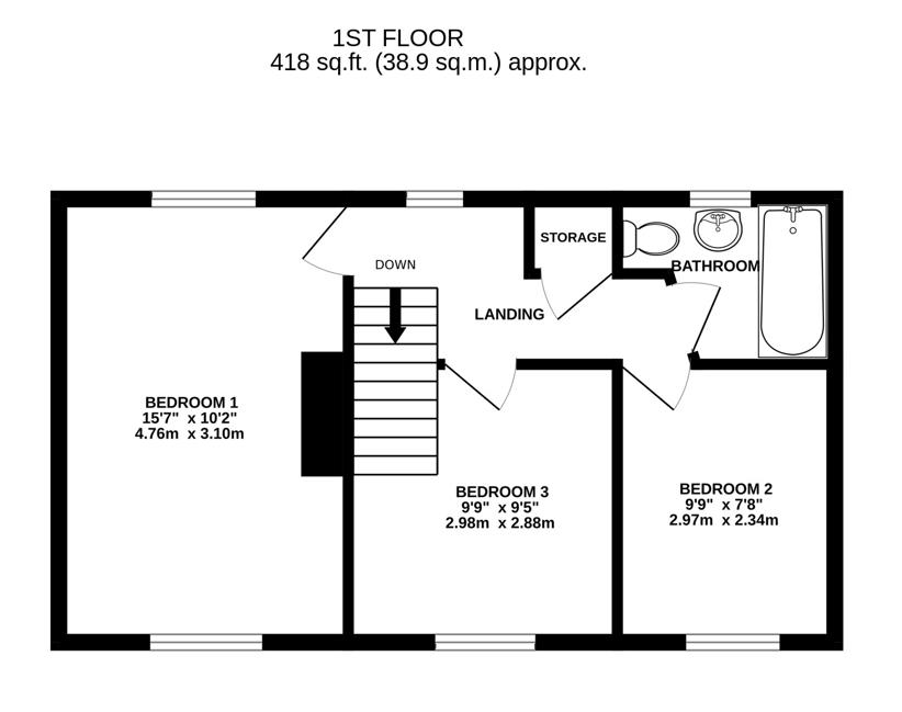
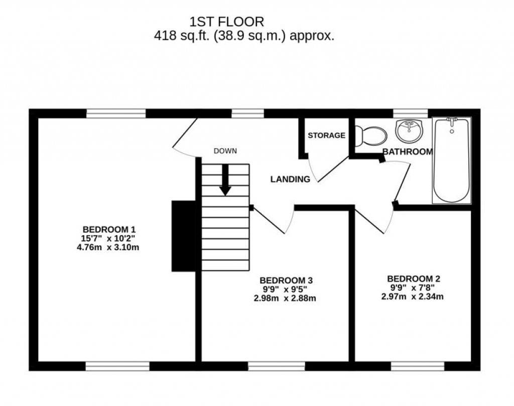
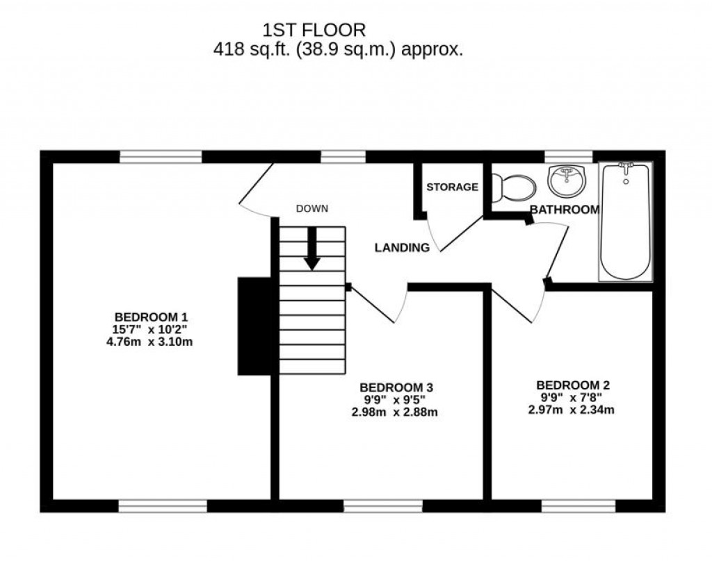
Located in the popular village of Leonard Stanley, this three bedroom property has been modernised and recently updated by the current vendor, including new carpets throughout. The ground floor has a living room with feature fireplace and dual aspect windows, a kitchen/diner with access to the garden and a cloakroom. There is one well-proportioned double bedroom and two generous singles, as well as a family bathroom. The property has both front and rear gardens that offer the opportunity to add your own stamp. The property is being offered to the market CHAIN FREE and is ideal for first time buyers or buy to let investors.

Entrance Hall

uPVC double-glazed door to entrance hall. Access to living room, kitchen/diner and stairs rising to the first floor.

Living Room

Two uPVC double-glazed windows to front and rear elevation. Feature fireplace. Two radiators.

Kitchen/Diner

uPVC double-glazed window to front elevation and uPVC double-glazed French doors to rear garden. Range of wall and base units with appliances to include stainless steel sink with mixer tap and drainer, oven and four ring gas hob. Space for washing machine and fridge/freezer. Under-stairs storage cupboard. Two radiators.

Cloakroom

uPVC double-glazed window to rear elevation. Low-level WC and wash hand basin. Radiator.

Bedroom One

Two uPVC double-glazed windows to front and rear elevation. Two radiators.

Bedroom Two

uPVC double-glazed window to front elevation. Radiator.

Bedroom Three

uPVC double-glazed window to front elevation. Radiator.

Bathroom

uPVC double-glazed window to rear elevation. Low-level WC, wash hand basin and bath with shower over. Heated towel rail.

Outside

The property boasts a front and rear garden. The front garden is mostly laid to lawn. The rear garden is a blank canvas and offers the opportunity to add your own stamp. There is a small patio space and path to the back.

Location

The popular village of Leonard Stanley is situated seven miles from the city of Gloucester and thirty miles from Bristol. It is easily accessible by road with Junction 13 of the M5 motorway just three miles away. There are railway stations at Stroud, Stonehouse and Cam and international airports at Bristol, Cardiff & Birmingham. The village offers, a Primary School, playgroup, pub, baby and toddler group, cricket and football clubs, social club and bus service.

Material Information

Tenure: Freehold.
Council tax band: B.
Local authority and rates: Stroud District Council - £1,792.54 (2025/26).
Electricity supply: mains.
Water supply: mains.
Sewerage: mains.
Heating: gas central heating.
Broadband speed: 6 Mbps (basic), 47 Mbps (superfast) and 1,000 Mbps (ultrafast).
Mobile phone coverage: EE, Three, O2 and Vodafone.

Agents Note

The property currently has Spray Foam Insulation installed, which will be removed over the next few weeks and the roof rectified.

Floorplans For Seven Waters, Leonard Stanley, Stonehouse Floorplans For Seven Waters, Leonard Stanley, Stonehouse Floorplans For Seven Waters, Leonard Stanley, Stonehouse
EPC For Seven Waters, Leonard Stanley, Stonehouse
Arrange a viewing for Seven Waters, Leonard Stanley, Stonehouse

For further details on this property please call us on:
01453 827640

Property Brochure Download PDF Arrange Viewing