3 1 2

3 bed House - Semi-Detached - Sold Subject to Contract
Chosen Way, Hucclecote
£285,000

  • Chain free
  • Ample off road parking
  • Three double bedrooms
  • Close to local amenities
  • Garage with power and light
  • Semi-detached house
  • Viewing recommended
  • Extended kitchen/dining room
  • Gloucester City Council - Tax band C (£1990.01 2025/2026)
  • EPC Rating D68
Located in the popular area of Hucclecote, this 3-bedroom chalet-style property is offered to the market chain-free. Featuring two reception rooms, a downstairs shower room, and three double bedrooms, this family home provides comfort and convenience. Outside of the property is a driveway offering off-road parking, a garage, and a private rear garden. Viewing is highly recommended.

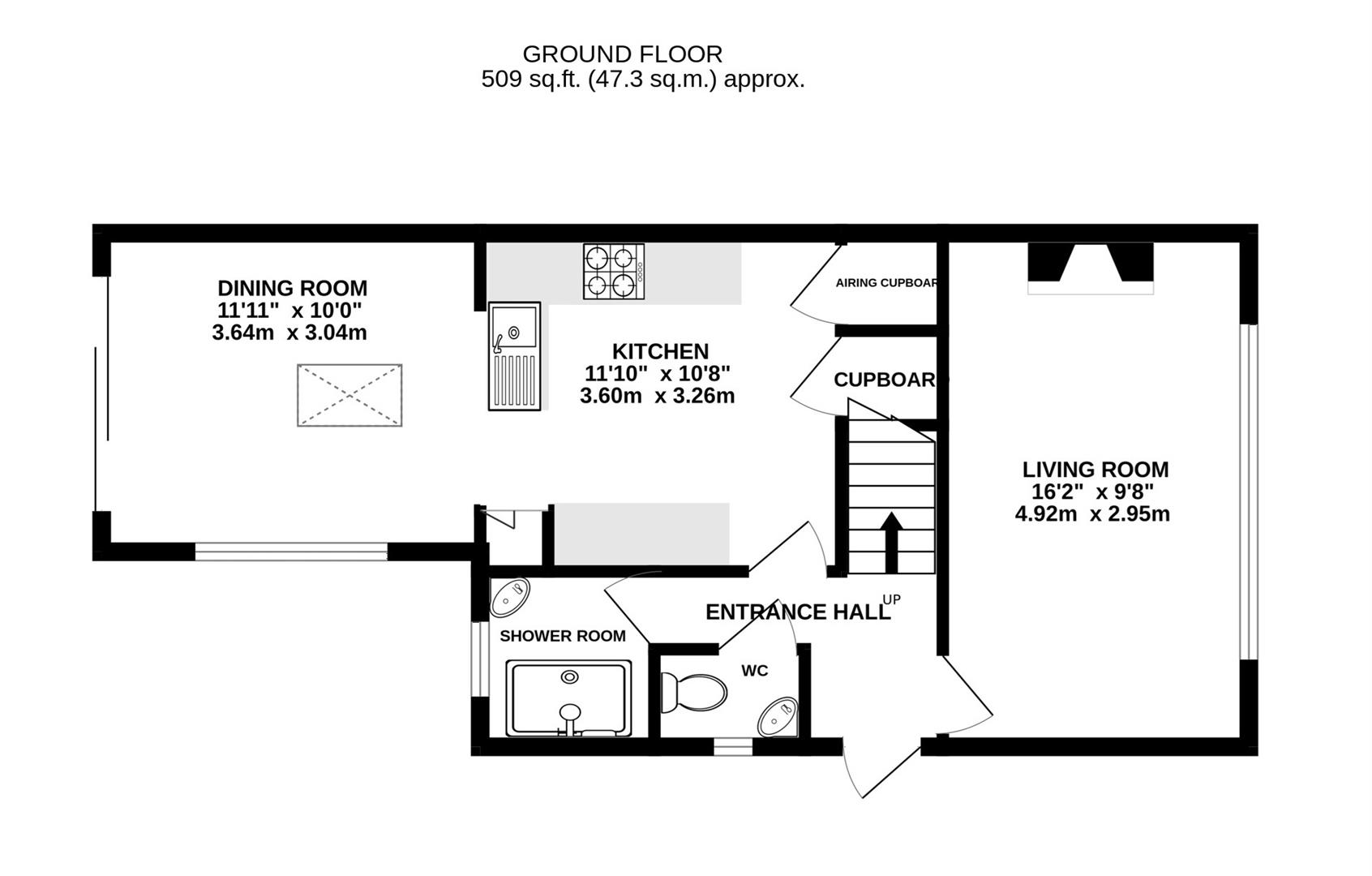
Entrance Hallway

Stairs to the first floor and doors to the kitchen, shower room, WC, and living room.

Living Room

UPVC double-glazed windows to front elevation, radiator, fireplace.

Kitchen

A range of matching wall and base units with work surfaces over, inset sink and drainer, cooker point, space for appliances, vinyl flooring, airing cupboard and further storage cupboard, open to;

Dining Room

UPVC double-glazed sliding door to rear elevation and frosted UPVC double-glazed window to the side elevation, roof light, vinyl flooring.

Shower Room

Handwash basin, shower cubicle, heated towel rail, obscure double-glazed window to rear elevation.

WC

WC, handwash basin, obscure double-glazed window to side elevation

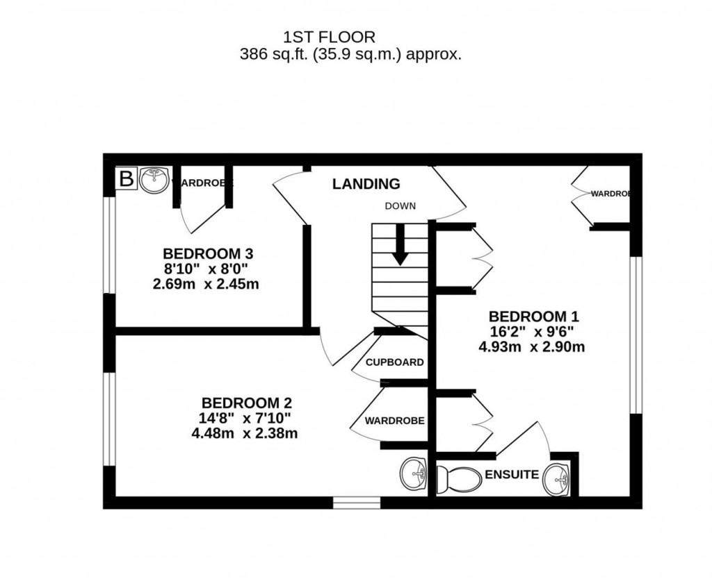
First Floor Landing

Radiator, doors leading to all bedrooms.

Bedroom One

Double-glazed window to front elevation, radiator, built in wardrobes, door to;

Ensuite WC

WC, handwash basin.

Bedroom Two

Double-glazed window to rear and side elevations, radiator, handwash basin, built-in wardrobes.

Bedroom Three

Double-glazed window to rear elevation, radiator, handwash basin, boiler, built-in wardrobe.

Outside

To the front of the property is a tarmac driveway for multiple cars, a lawn area and access to the garage. There is a side access leading to the rear garden that offers a variety of mature planting and several different areas to enjoy, including a lawned area, a paved patio, a summerhouse, and two greenhouses. There is outside lighting, power and a tap.

Garage

Stable doors, power and light.

Location

Located southeast of the historic Gloucester City Centre, the popular area of Hucclecote has lots to offer with an array of shops, transport links, and schools. Various local amenities include the local Dinglewell and Hillview junior schools as well as access to several secondary and grammar schools being located within the city. A short distance away is access to the M5, providing ideal links to Birmingham and Bristol, whilst a direct line to London Paddington can be located at Gloucester Station. There are also regular bus services to both Cheltenham and Gloucester. The immediate locality offers various walks and open spaces within arguably one of Gloucester's most desirable established residential areas. Access to the countryside is a short walk or cycle ride away, as well as a children's play area, Hucclecote Green, and meadows within close proximity.

Material Information

Tenure: Freehold.
Council Tax Band: Tax Band C
Local Authority and Rates: Gloucester City Council; £1990.01(2025/2026)
Electricity supply: Mains
Water supply: Mains
Sewerage: Mains
Heating: Gas central heating
Broadband speed: Standard 17 Mbps, Superfast 67 Mbps, Ultrafast 1000 Mbps
Mobile phone coverage: EE(Likely), Three(Likely), 02(Likely) and Vodafone(Likely)

Floorplans For Chosen Way, Hucclecote Floorplans For Chosen Way, Hucclecote Floorplans For Chosen Way, Hucclecote
EPC For Chosen Way, Hucclecote
Arrange a viewing for Chosen Way, Hucclecote

For further details on this property please call us on:
01452 941950

Property Brochure Download PDF Arrange Viewing