4 4 3

4 bed House - Detached - Sold Subject to Contract
Rectory Close, Maisemore, Gloucester
£595,000

  • Immaculately presented four double bedroom detached family home
  • Two en-suite shower rooms
  • Generous & flexible ground floor living accommodation
  • Enclosed lawned rear garden
  • Detached double garage & driveway for two vehicles
  • Stunning un-interrupted Countryside views to the front
  • Peaceful village location of Maisemore
  • EPC rating B83
  • Tewkesbury Borough Council - Tax Band F (£3,342.86 per annum) 2025/2026
Situated in the rural village of Maisemore, this four-bedroom, detached family home is positioned in the modern development of Rectory Close. The property boasts generous living accommodation throughout, two en-suite shower rooms, a large enclosed rear garden, detached double garage and off-road parking for multiple vehicles. Stunning un-interrupted countryside views to the front make this home highly desirable for families looking to be in a more peaceful setting.

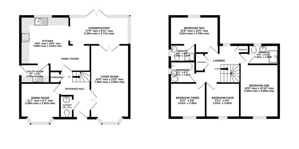
Entrance Hallway

Spacious light & airy entrance hallway provides access to the living room, dining room, kitchen, downstairs w.c, built-in storage cupboard and to the stairwell leading to the first floor.

Kitchen

The immaculately presented modern kitchen provides a convenient seating area for a dining area or home office space if required. Central island provides convenient worktop and storage space with a breakfast bar offering an ideal seating area. Additional worktop and storage space is provided within the kitchen with integrated appliances to include double ovens, hob with extractor over, dishwasher, fridge and freezer. Window overlooks the rear garden whilst access is provided to the utility room and conservatory.

Utility Room

The utility room provides additional worktop and storage space with plumbing for an automatic washing machine and tumble dryer below. Door provides access to the side of the property.

Conservatory

Currently used as a dining room, an abundance of natural light streams into the conservatory via the windows above and windows overlooking the rear garden with French doors providing access to the garden itself. An internal set of double doors provide access to the living room.

Living Room

Generous sized living room with bay window overlooking the front aspect and double doors providing access to the entrance hallway.

Dining Room / Study

Currently utilised as a play room, the room offers the potential to be a dining room, snug or home office if required with additional bay window overlooking the front aspect.

Downstairs W.C

Modern white suite cloakroom comprising of w.c, wash hand basin and window with frosted glass overlooking the front aspect.

Landing

Light and airy landing, with window overlooking the rear aspect, provides access to all four bedrooms, family bathroom, two built-in storage cupboards and to the loft above.

Bedroom One

Double bedroom with two sets of built-in double wardrobes, window overlooking the front aspect and access to the en-suite.

En-Suite

Modern white suite shower room comprising of w.c, wash hand basin, heated towel rail, walk-in shower cubicle and window with frosted glass overlooking the rear aspect.

Bedroom Two

Double bedroom with window overlooking the rear aspect and access to a second en-suite shower.

En-Suite

Modern white suite shower room comprising of w.c, wash hand basin, heated towel rail, shower cubicle and window with frosted glass overlooking the side aspect.

Bedroom Three

Double bedroom with window overlooking the front aspect.

Bedroom Four

Double bedroom with window overlooking the front aspect.

Family Bathroom

Modern white suite family bathroom comprising of w.c, wash hand basin, bath with shower attachment over and window with frosted glass overlooking the side aspect.

Outside

To the rear, the property a spacious rear garden enclosed with fenced borders. Patio provides a suitable seating area leading to a lawned area. Gated side access either side of the house leads to the front of the property where an additional lawned area is located with open fields opposite providing beautiful Countryside views. To the side of the house, the property also benefits from a detached double garage benefitting from power and lighting with driveway in-front providing off-road parking.

Location

Situated north of the historic City of Gloucester on the west side of the River Severn, Maisemore provides its parishioners with the experience of countryside living alongside the convenience of being located four miles from the City Centre. With an active Village Hall, various country and riverside walks, an authorised Severn Bore site as well as local schooling and post office in the near by village of Hartpury two miles away.

Material Information

Tenure: Freehold. There is an estate management charge of £489.95 per annum payable to BNS Ltd. Next review is April 2025. LABC new home warranty valid until August 2030.
Local Authority and Rates: Tewkesbury Borough Council - Tax Band F (£3,342.86 per annum) 2025/2026.
Electricity supply: Mains.
Water supply: Mains.
Sewerage: Mains.
Heating: Mains gas.
Broadband speed: Basic 22 Mbps, Superfast 80 Mbps download speed.
Mobile phone coverage: EE, Three, O2, Vodafone.

Floorplans For Rectory Close, Maisemore, Gloucester
EPC For Rectory Close, Maisemore, Gloucester
Arrange a viewing for Rectory Close, Maisemore, Gloucester

For further details on this property please call us on:
01452 398010

Property Brochure Download PDF Arrange Viewing