3 1 1

3 bed House - Mid Terrace - To Let
Gloucester Road, Stonehouse
PCM - £1,300pcm Tenant Fees

  • Three bedrooms
  • Mid terrace house
  • Large rear garden
  • On street parking
  • Local amenities
  • EPC D55
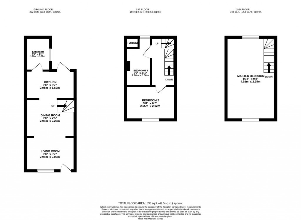
Naylor Powell welcome to the market, this three bedroom mid terrace house in Stonehouse. The property comprises; a large rear garden, two double bedrooms and one single bedroom with built in storage and open plan living. Further benefits include, local amenities and fist comes first on street parking.

This property is available early January and is managed by the landlord. There is a restriction of no smokers and pets by consideration.

Services & Material Information

Rent: £1,300 per calendar month
Holding Deposit: £300 based on 1 weeks’ rent of asking price
Security Deposit: £1,500 based on 5 weeks’ rent of asking price
Council tax band: B
Local authority and rates: Stroud District Council £1,883.49 25/26
Electricity supply: Mains
Water supply: Mains
Sewerage: Mains
Heating: Gas
Broadband speed: Standard 16 Mbps, Superfast 80 Mbps, Ultrafast 10000 Mbps
Mobile phone coverage: EE(Likely), Three(Likely), O2(Likely) & Vodafone(Likely)

Floorplans For Gloucester Road, Stonehouse
EPC For Gloucester Road, Stonehouse
Arrange a viewing for Gloucester Road, Stonehouse

For further details on this property please call us on:
01452 398010

Property Brochure Download PDF