1 1 1

1 bed Bungalow - Let Agreed
Gorsley, Ross-On-Wye
PCM - £590pcm Tenant Fees

  • Bungalow
  • One Bedroom
  • Village Location
  • Electric Heating
  • Residents Parking
  • EPC D58
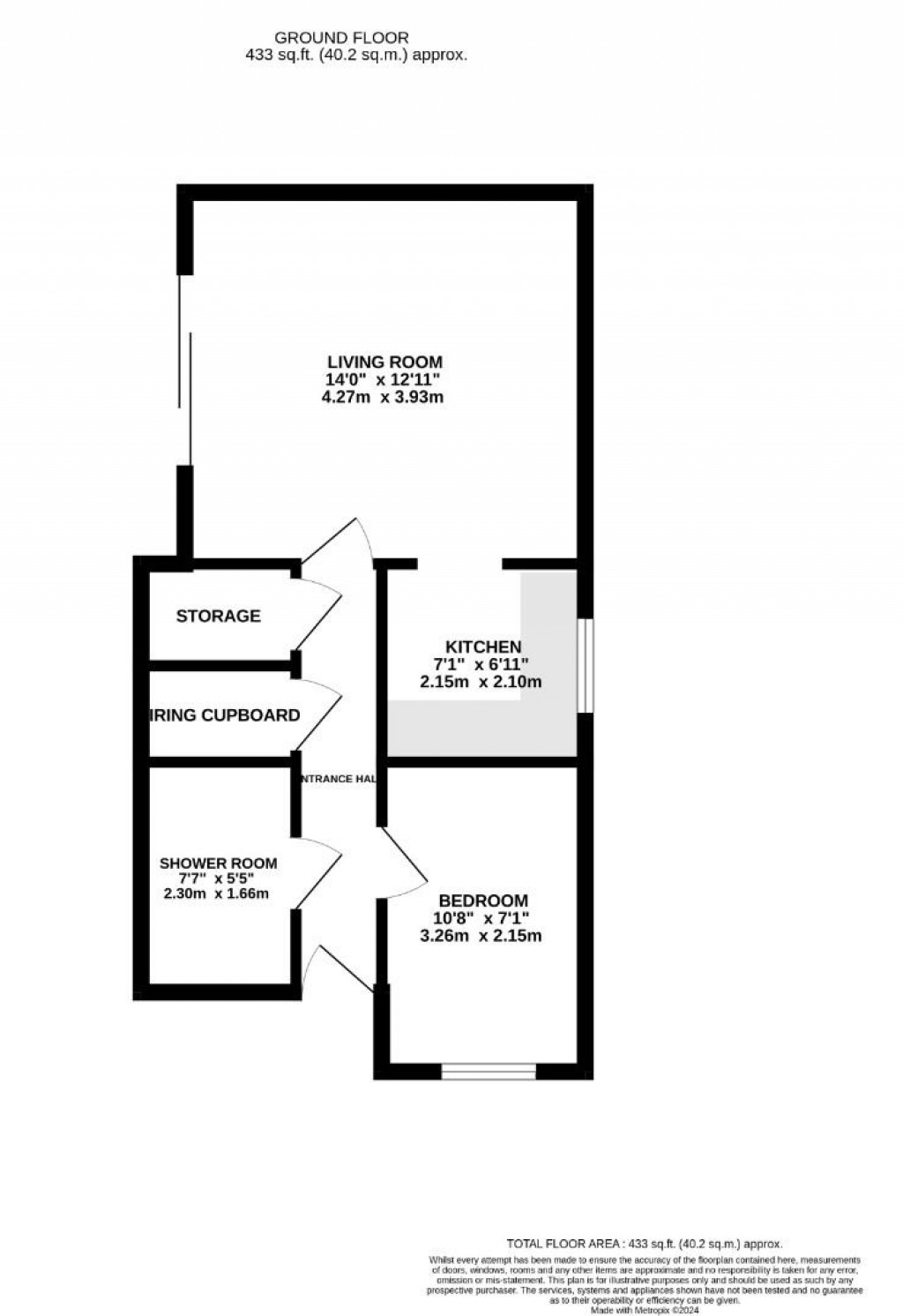
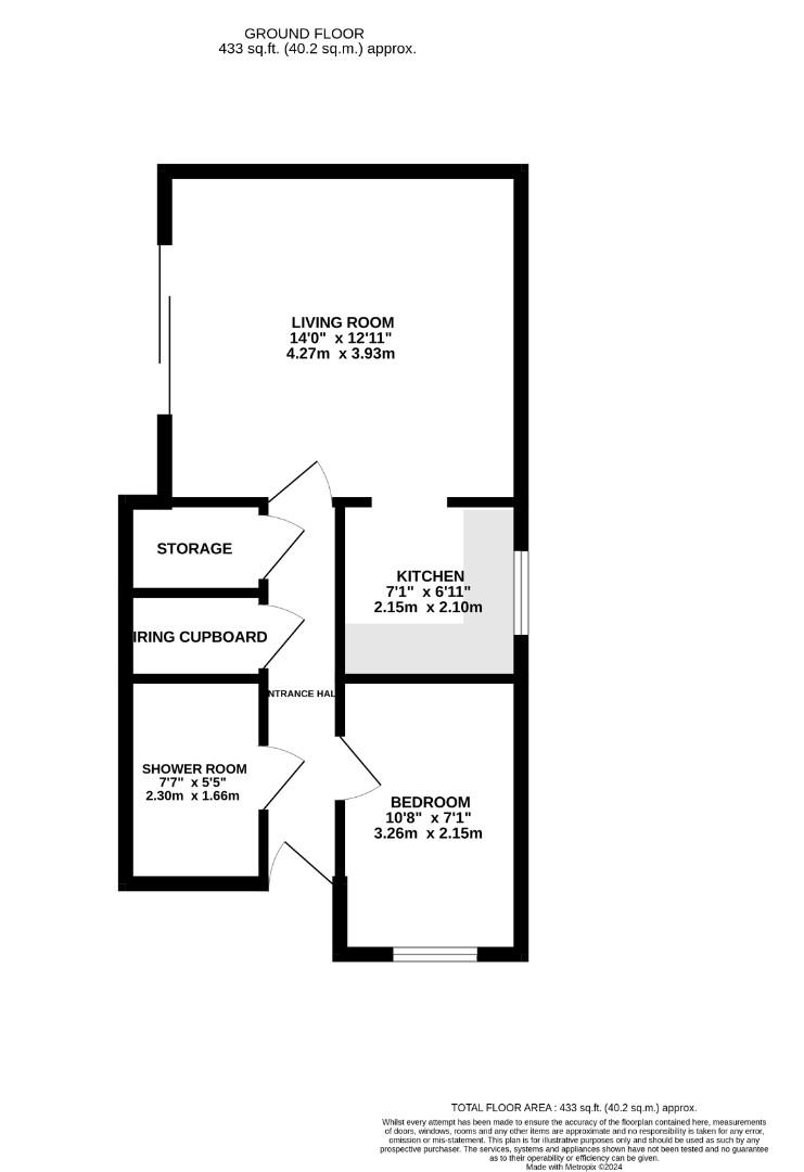
This one bedroom bungalow is available in the rural village of Gorsley. The accommodation comprises separate kitchen, living room with French Doors, single bedroom and shower room. This property also offers two additional storage cupboards, small outside space to maintain and a separate facility for washing. The property has recently been re-decorated and a new bathroom has been installed.

This property is available now and is managed by Naylor Powell. There is a restriction of no pets or smokers.

Services & Material Information

Rent: £590 per calendar month
Holding Deposit: £136 based on 1 weeks’ rent of asking price
Security Deposit: £680 based on 5 weeks’ rent of asking price
Council tax band: A
Local authority and rates: Herefordshire Council - £1517.93 24/25
Electricity supply: Mains
Water supply: Mains
Sewerage: Mains
Heating: Electric Mains
Broadband speed: i.e Basic 16 Mbps, Superfast 80 Mbps
Mobile phone coverage: i.e EE(Limited), Vodaphone(Limited), Three(Limited), O2(Likely)

Agents Note

This property is only suitable for single occupancy.

Floorplans For Gorsley, Ross-On-Wye
EPC For Gorsley, Ross-On-Wye
Arrange a viewing for Gorsley, Ross-On-Wye

For further details on this property please call us on:
01452 398010

Property Brochure Download PDF