1 1 1

1 bed Apartment - Let Agreed
Merchants Quay, Gloucester Docks, GL1
PCM - £875pcm Tenant Fees

  • One bedroom
  • Third floor apartment
  • Views of the Main Basin
  • Gas central heating
  • Secure allocated parking
  • EPC B83
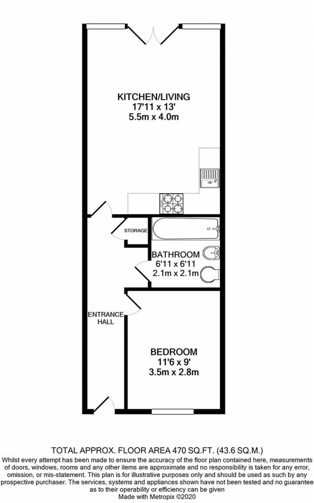
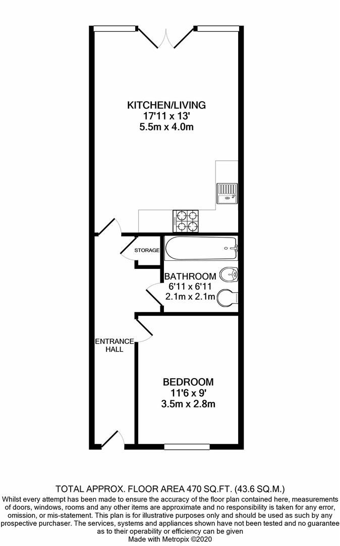
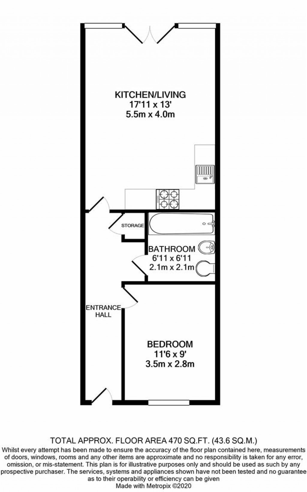
A one bedroom, third floor apartment with views of the Main Basin. The accommodation comprises: open plan kitchen and living with Juliette doors, bedroom and modern bathroom. The property further benefits from gas central heating and allocated parking.

This property is available early January and is managed by Naylor Powell. There is a restriction of no pets or smokers.

Services & Material Information

Rent: £875 per calendar month
Holding Deposit: £201based on 1 weeks’ rent of asking price
Security Deposit: £1,009 based on 5 weeks’ rent of asking price
Council tax band: B
Local authority and rates: Gloucester City Council, £1,741.26 25/26
Property construction: Steel frame with brick slip & timber cladding.
Electricity supply: Mains
Water supply: Mains
Sewerage: Mains
Heating: Gas
Broadband speed: Standard 18 Mbps, Superfast 80 Mbps
Mobile phone coverage: EE(Limited), Vodaphone(Limited), O2(Limited), Three(Likely)

Floorplans For Merchants Quay, Gloucester Docks, GL1
EPC For Merchants Quay, Gloucester Docks, GL1
Arrange a viewing for Merchants Quay, Gloucester Docks, GL1

For further details on this property please call us on:
01452 398010

Property Brochure Download PDF