4 1 3

4 bed House - Detached - For Sale
Rosedale Avenue, Stonehouse
£399,950

  • Detached house within close proximity to train station ideal for commuters
  • Four bedrooms
  • Living room with Bay window
  • South East facing garden boasting hand made mosaics from the current owners
  • Garage and driveway parking for two vehicles
  • Situated in the sought after location of Rosedale Avenue close to town centre
  • Chain free
  • Freehold
  • Council tax band D (£2,421.63)
  • EPC rating C79
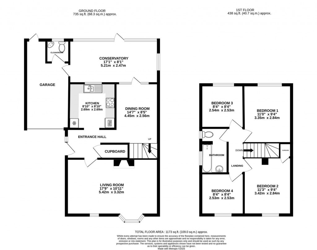
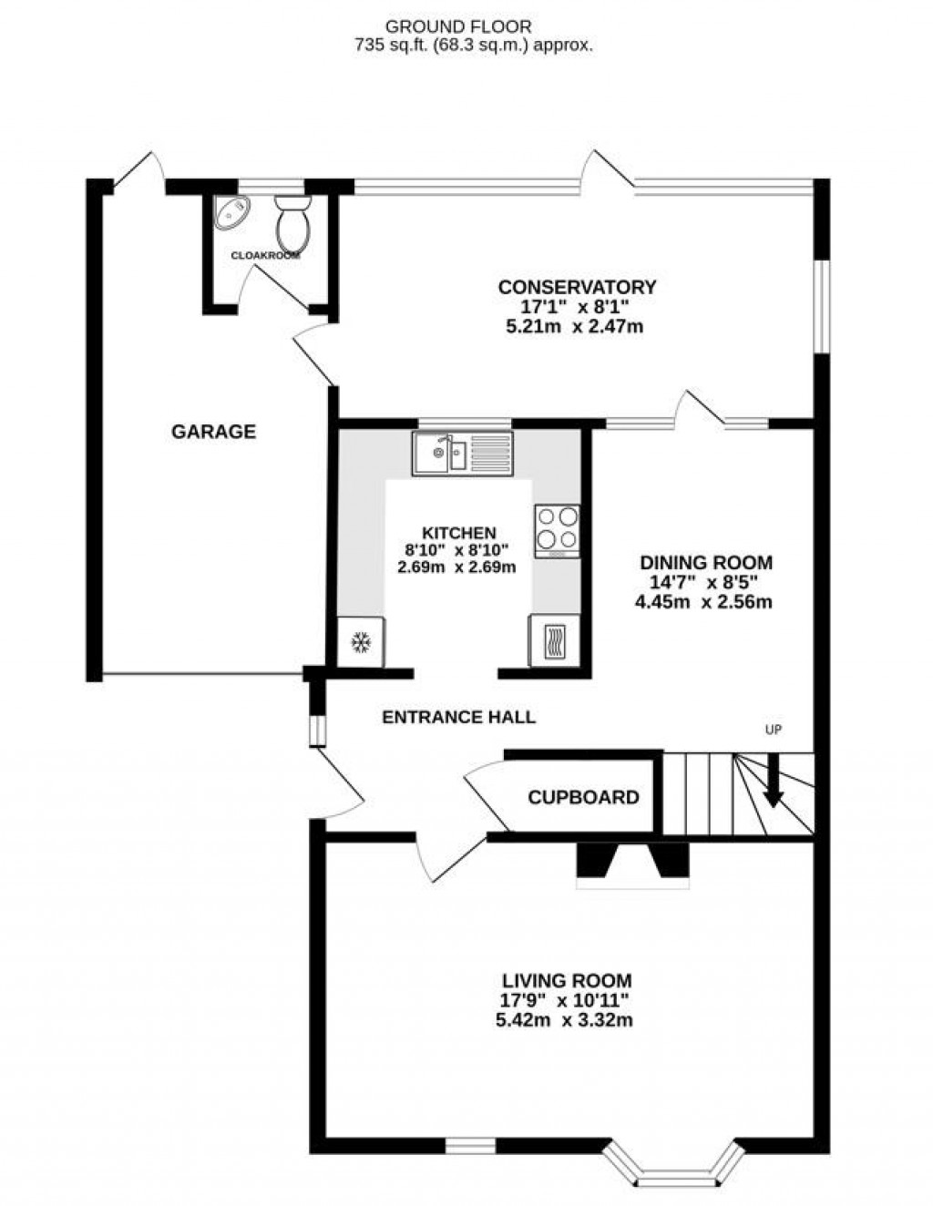
Located at the foot of the Quarry and within easy reach of the train station, this four bedroom detached house is ideal for commuters and families. On the ground floor there is a living room with Bay window, kitchen, dining room and conservatory with access to the garden. There are four bedrooms and a sizeable bathroom on the first floor. Externally, the South East facing garden is mature and boasts hand made mosaics hidden around the garden. There is driveway parking for two vehicles and a garage with power, light and cloakroom. The property is being bought to the market CHAIN FREE.

Entrance Hall

uPVC double-glazed door to entrance hall. Access to living room, kitchen, dining room and storage cupboard.

Living Room

uPVC double-glazed window to front elevation and uPVC double-glazed Bay window to front elevation. Gas fireplace. Radiator.

Kitchen

Wooden single-glazed window to conservatory. Range of wall and base units with appliances to include ceramic one and a half bowl sink with mixer tap and drainer, four ring electric hob, eye-level double oven, washing machine and fridge/freezer.

Dining Room

Wooden single-glazed door to conservatory and wooden single-glazed window either side. Stairs rising to the first floor. Radiator.

Conservatory

Wooden single-glazed window to side elevation, wooden single-glazed window to kitchen, uPVC double-glazed French doors to rear garden and uPVC double-glazed windows either side. Radiator.

Bedroom One

uPVC double-glazed window to rear elevation. Radiator.

Bedroom Two

uPVC double-glazed window to front elevation. Over-stairs storage cupboard. Radiator.

Bedroom Three

uPVC double-glazed window to rear elevation. Radiator.

Bedroom Four

uPVC double-glazed window to front elevation. Radiator.

Bathroom

Two uPVC double-glazed windows to side elevation. Low-level WC, wash hand basin and bath with hand held shower. Heated towel rail.

Outside

The front of the property has driveway parking for two vehicles, it also provides side access to the garden. The rear garden is fully enclosed with a tasteful patio and lawned area. Through the lawn is some stepping stones incorporating mosaics created by the present owner. There is a raised bed and storage shed as well as rear access to the garage. The garage has power and light with a cloakroom inside.

Location

The property is close to Stonehouse town. Local facilities include a Co-op with a Post Office, restaurants, primary and secondary schools. The property is approximately 4 miles to Junction 12 of the M5 motorway providing access to Gloucester, Cheltenham and Bristol. Stonehouse railway station has a regular train service to London and Cheltenham. The town is situated approximately three miles west of Stroud and twelve miles south of Gloucester.

Material Information

Tenure: Freehold.
Council tax band: D.
Local authority and rates: Stroud District Council - £2,421.63 (2025/26).
Electricity supply: mains.
Water supply: mains.
Sewerage: mains.
Heating: gas central heating.
There are leased solar panels. The contract began 8th November 2011 and lasts 25 years and 3 months including the date of the lease. There is a peppercorn rent.
Broadband speed: 16 Mbps (basic) and 41 Mbps (superfast).
Mobile phone coverage: EE, Three, O2 and Vodafone.

Floorplans For Rosedale Avenue, Stonehouse Floorplans For Rosedale Avenue, Stonehouse Floorplans For Rosedale Avenue, Stonehouse
EPC For Rosedale Avenue, Stonehouse
Arrange a viewing for Rosedale Avenue, Stonehouse

For further details on this property please call us on:
01453 827640

Property Brochure Download PDF Arrange Viewing