2 2 1

2 bed Apartment - For Sale
Huckley Field, Abbeymead, Gloucester
£192,500

  • Chain free
  • Fantastic investment opportunity
  • First Floor Apartment
  • Ensuite to master bedroom
  • Integrated Kitchen Appliances
  • Two Bedrooms
  • Secure Allocated Parking
  • Leasehold- Length of lease 108 years remaining
  • EPC rating D61
  • Gloucester City Council - Tax band B (£1,741.26 2025/2026)
Located in the historic Clock Tower in the popular area of Abbeymead, is this spacious, first floor apartment. The property benefits from open plan living accommodation with views of across the playing field with two double bedrooms, with an ensuite shower room to the master bedroom. Outside benefits from secure allocated parking in a gated development. Appealing to both residential buyers and investors, viewing is highly recommended. This property is being offered to the market with no onward chain.

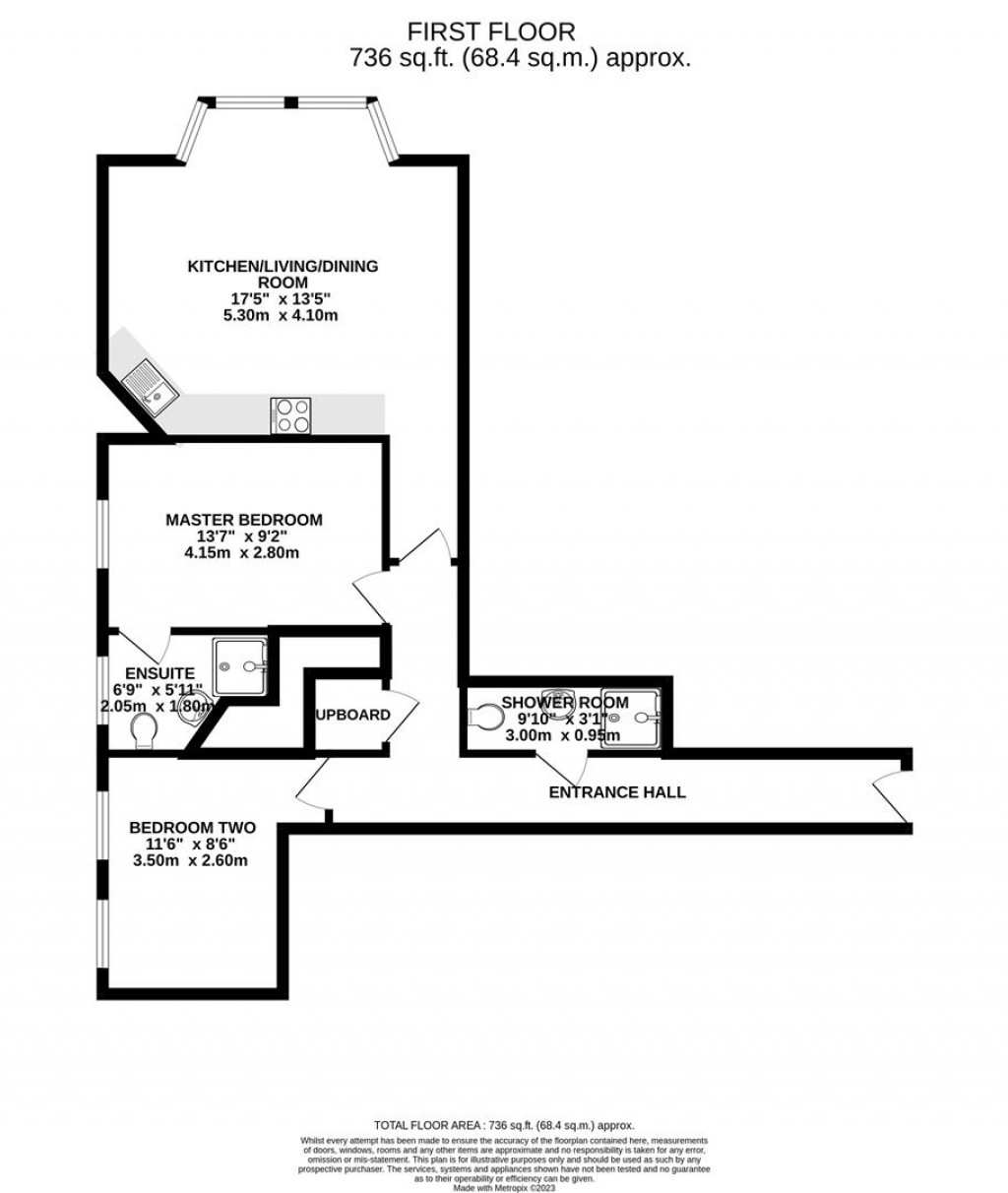
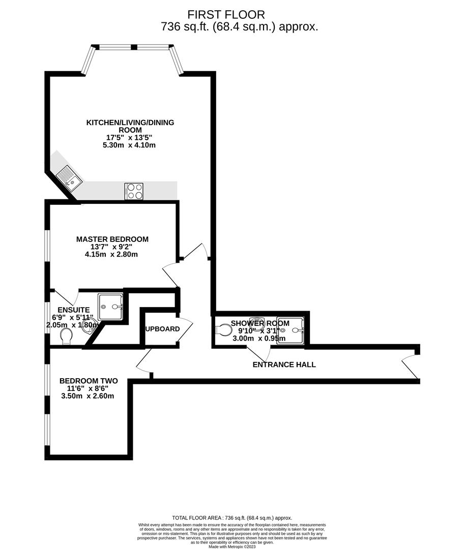
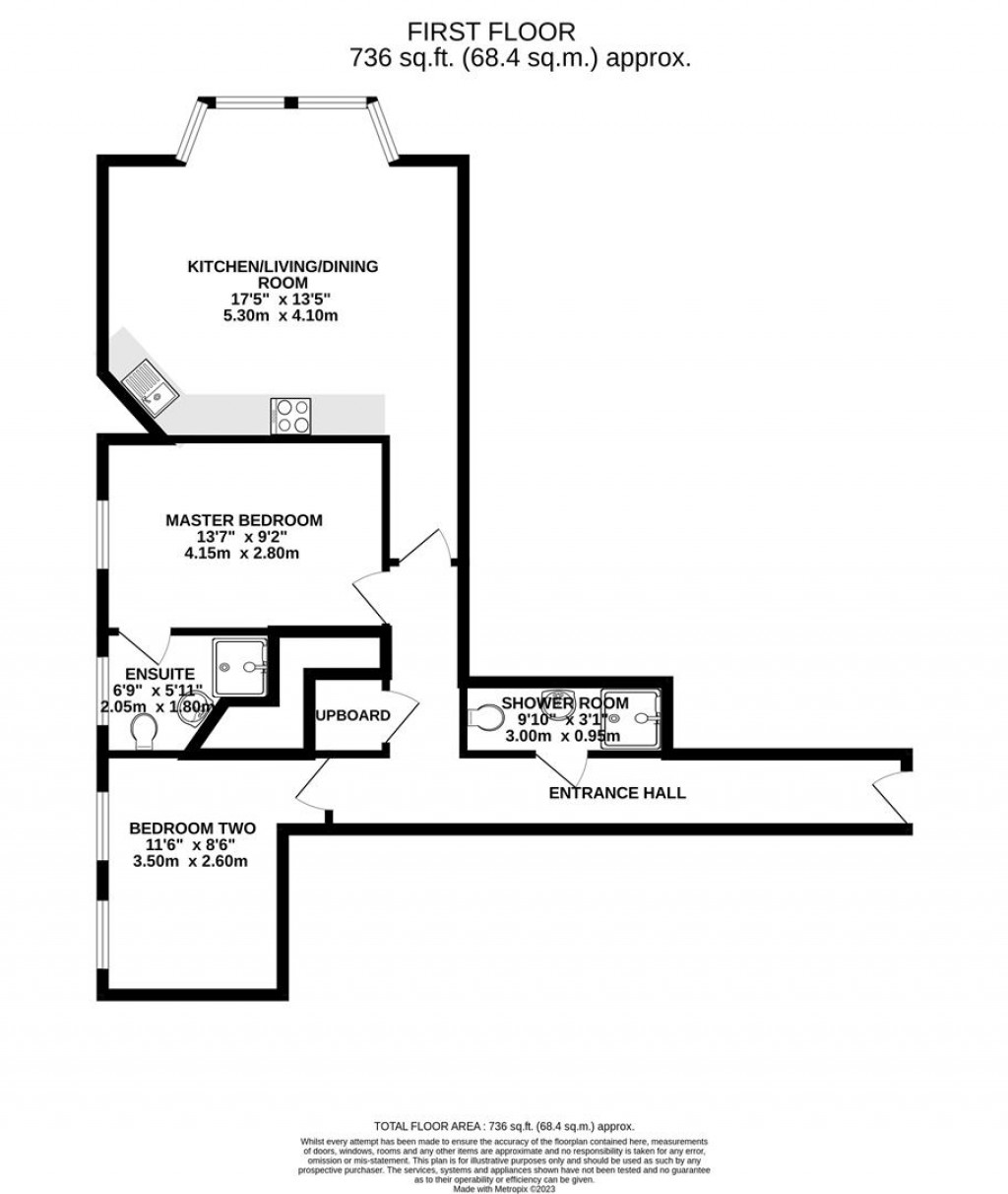
Entrance hall

Storage cupboard, doors to all rooms.

Open plan kitchen/living

The kitchen area consists of matching wall and base units with laminate work surface over, inset 1 1/2 bowl stainless steel sink and drainer unit, integrated appliances to include hob, oven and fridge freezer. There is then also a good size living area with four large double glazed windows to the front elevation and wall mounted electric heaters.

Master bedroom

A very good size double bedroom with double glazed window to the side elecvation, wall mounted electric heater and door to;

En-suite

Double glazed window to the side elevation, shower cubicle, wash hand basin, WC, tiled splash backs and tiled flooring.

Second bedroom

A good double bedroom with two double glazed windows to the side elevation, wall mounted electric heater.

Shower room

Shower cubicle, wash hand basin, WC, tiled splash backs and tiled flooring.

Outside

Location

The ever popular suburb of Abbeymead is situated on the outskirts of Gloucester City Centre offering various amenities including a Morrisons superstore, restaurants, schooling and public transport links to include the Gloucester bus routes to the nearly renovated City Centre station. The historic City Centre, to include the medieval Cathedral, offers further shops, boutiques and eateries alongside the recently developed Gloucester Docks and Quays shopping destination.

Material Information

Tenure: Leasehold from 1 June 2006 to 31 May 2131 - 106 years remaining, Maintenance charge - Approx. £127 per month Ground Rent - Approx. £200 per annum.
Managed by Warwick Estates Property Management Ltd
Council Tax Band: Tax Band B
Local Authority and Rates: Gloucester City Council; £1,741.26(2025/2026)
Electricity supply: Mains
Water supply: Mains
Sewerage: Mains
Heating: Gas central heating
Broadband speed: Standard 14 Mbps, Superfast 74 Mbps
Mobile phone coverage: EE(Likely), Three(Likely), 02(Likely) and Vodafone(Likely)

Floorplans For Huckley Field, Abbeymead, Gloucester
EPC For Huckley Field, Abbeymead, Gloucester
Arrange a viewing for Huckley Field, Abbeymead, Gloucester

For further details on this property please call us on:
01452 941950

Property Brochure Download PDF Arrange Viewing