4 3 3

4 bed House - Detached - For Sale
Rectory Close, Maisemore, Gloucester
Offers Over - £550,000

  • Immaculately presented four bedroom detached family home
  • Generous & flexible ground floor living accommodation
  • Modern appliances & fittings throughout
  • Enclosed rear garden
  • Detached double garage & driveway for two vehicles with EV charging
  • Peaceful village location of Maisemore
  • EPC rating B84
  • Tewkesbury Borough Council - Tax Band F (£3,342.86 per annum) 2025/2026
Situated in the rural village of Maisemore, this four-bedroom, detached family home is positioned in the modern development of Rectory Close. The property boasts generous living accommodation throughout, en-suite to masters, a large enclosed rear garden, detached double garage and off-road parking for multiple vehicles with EV charging and solar panels. This home is highly desirable for families looking to be in a more peaceful setting.

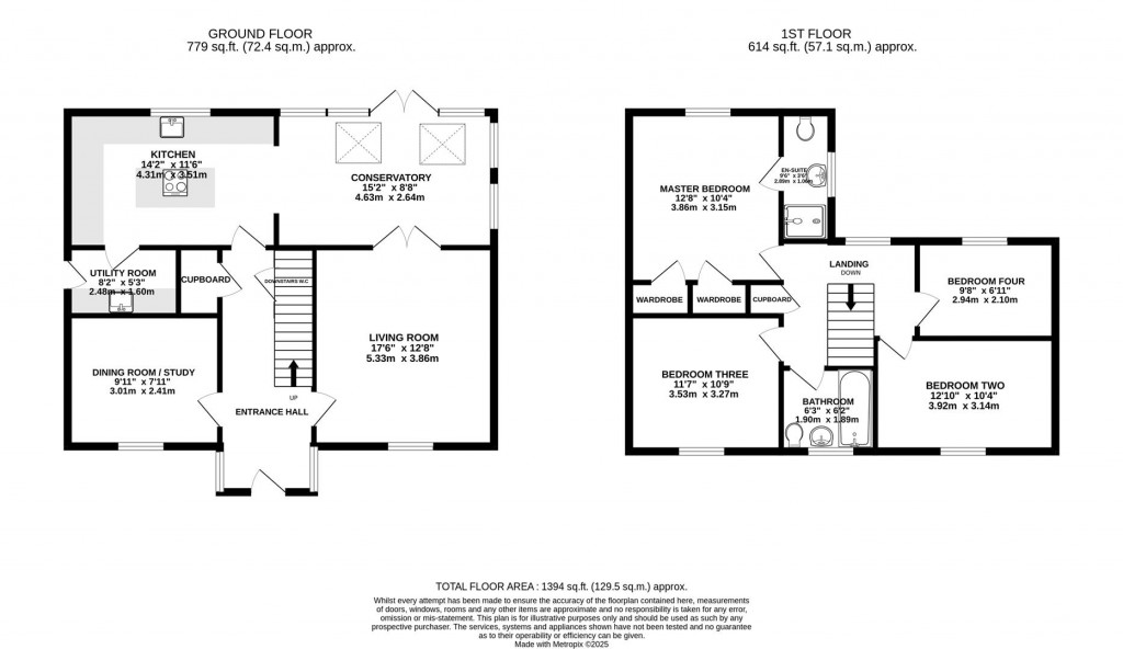
Entrance Hallway

Spacious hallway provides access to the living room, study, kitchen, downstairs w.c, built-in storage cupboard and stairs leading to the first floor of the property.

Living Room

Spacious living room with window overlooking the front aspect and double doors providing access to the conservatory.

Conservatory

Currently used as a dining room, an abundance of natural light streams into the room via the windows above and windows overlooking the rear garden with French doors providing access to the garden itself. The room continues to open through to the kitchen.

Kitchen

Modern kitchen benefits from ample worktop and storage space with integrated appliances to include double ovens, dishwasher and induction hob built within the central island with extractor above. Window overlooks the rear garden whilst access is provided to the utility room.

Utility Room

The utility room boasts further worktop and storage space with plumbing for an automatic washing machine below and door opening to the side of the property.

Dining Room / Study

Currently utilised as a home office, the room provides versatility for many uses with window overlooking the front aspect.

Downstairs W.C

Modern white suite cloakroom comprises w.c and wash hand basin.

Landing

Spacious landing, with window overlooking the rear aspect, provides access to all four bedrooms, family bathroom, two storage cupboards and to the loft above.

Bedroom One

Double bedroom with two built-in wardrobes, window overlooking the rear aspect and access to the en-suite.

En-Suite

White suite shower room comprises w.c, wash hand basin, shower cubicle, heated towel rail and window with frosted glass overlooking the rear garden.

Bedroom Two

Double bedroom with window overlooking the front aspect.

Bedroom Three

Double bedroom with window overlooking the front aspect.

Bedroom Four

Bedroom with window overlooking the rear aspect.

Family Bathroom

Modern white suite family bathroom comprises w.c, wash hand basin, bath with shower attachment over, heated towel rail and window with frosted glass overlooking the front aspect.

Outside

To the rear, the property boasts a spacious garden enclosed with fenced borders. Mainly laid to lawn, the garden also provides a patio area and covered decked area ideal for seating and alfresco dining throughout the summer months. Gated access to the side leads to the front of the property where additional garden space is found with gates providing separation from the road. The property is also benefits from a detached double garage benefitting from power and lighting. Two up and over doors provide access from the front whilst personal use door provides access from the garden. Off-road parking for two vehicles is found in-front of the garage with EV charging capabilities.

Location

Situated north of the historic City of Gloucester on the west side of the River Severn, Maisemore provides its parishioners with the experience of countryside living alongside the convenience of being located four miles from the City Centre. With an active Village Hall, various country and riverside walks, an authorised Severn Bore site as well as local schooling and post office in the near by village of Hartpury two miles away.

Material Information

Tenure: Freehold. There is an estate management charge of £489.95 per annum payable to BNS Ltd. Next review is April 2026. LABC new home warranty valid until August 2030.
Local Authority and Rates: Tewkesbury Borough Council - Tax Band F (£3,342.86 per annum) 2025/2026.
Electricity supply: Mains. Solar panels on the roof provide substantial power to the property. The panels are owned outright by the vendors.
Water supply: Mains.
Sewerage: Mains.
Heating: Electric with an air source heat pump.
Broadband speed: Basic 4 Mbps, Ultrafast 1800 Mbps download speed.
Mobile phone coverage: EE, Three, O2, Vodafone.

Floorplans For Rectory Close, Maisemore, Gloucester
EPC For Rectory Close, Maisemore, Gloucester
Arrange a viewing for Rectory Close, Maisemore, Gloucester

For further details on this property please call us on:
01452 398010

Property Brochure Download PDF Arrange Viewing