4 2 3

4 bed House - Detached - For Sale
Stocken Close, Hucclecote, Gloucester
£415,000

  • Four bedroom detached family home
  • Versatile living accommodation throughout
  • Ample off-road parking
  • Private and enclosed rear garden
  • Situated in the popular suburb of Hucclecote
  • Close to local amenities
  • En-suite to master bedroom
  • Versatile conservatory
  • EPC TBC
  • Tewkesbury Borough Council - Tax Band E - (£2,702.44 per annum 2025/2026)
New to the market is this well presented four bedroom family home situated in the popular suburb of Hucclecote. Benefitting from ample off road parking, en-suite to master bedroom and private and enclosed rear garden. Viewing advised.

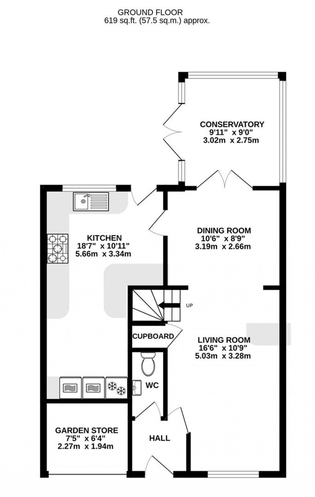
Entrance Hall

Stepping inside the property, the entrance hall leads to the cloakroom and living room.

Cloakroom

W.C and wash hand basin.

Living Room

Generously sized living room with window to the front aspect. Stairs to the first floor.

Dining Room

Dining room provides a versatile space and leads to both the kitchen and conservatory via double doors.

Kitchen

Ample storage in a range of floor and eye level units accompanied by integrated appliances to include fridge freezer, double electric oven, dishwasher and five ring gas hob with extractor over. Additional space and plumbing for washing machine. Door to garden.

Conservatory

The conservatory offers a versatile space and overlooks the back garden. French doors to the patio area.

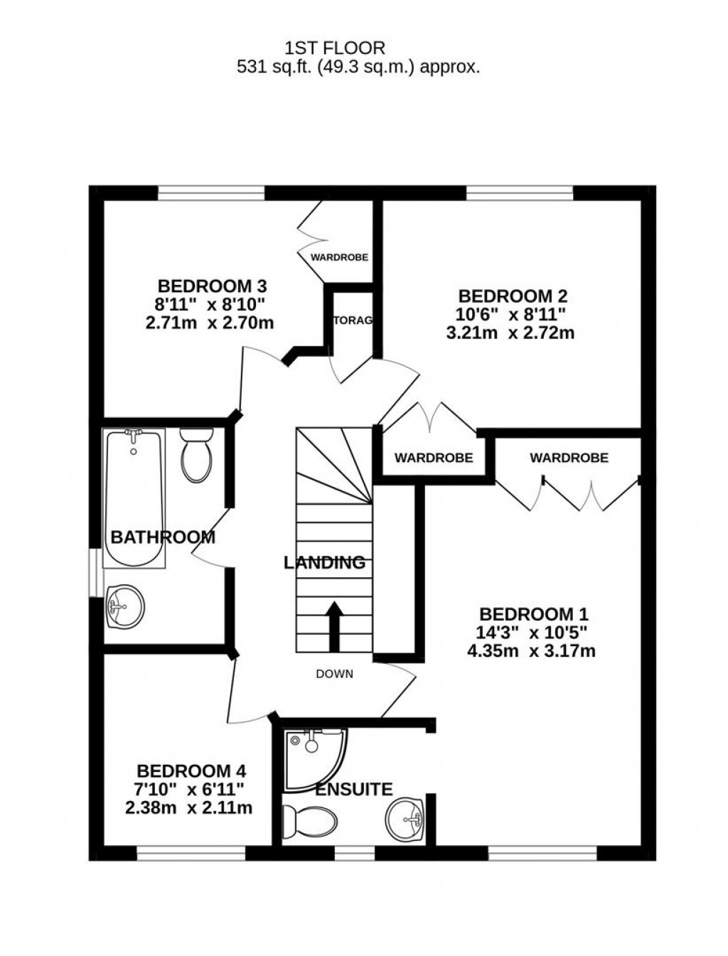
Landing

Provides access to four bedrooms and a family bathroom

Master Bedroom

Double bedroom with built-in wardrobes. Window to frost aspect.

En-suite

Stylish shower room with W.C, wash hand basin and shower enclosure. Frosted window to front aspect.

Second Bedroom

Double bedroom with built-in wardrobe. Window to rear aspect overlooking the back garden.

Third Bedroom

Built-in wardrobe and window to rear aspect.

Fourth Bedroom

Window to front aspect.

Bathroom

Modern bathroom suite to include vanity unit with mixer tap, W.C and bath.

Storage

The garage has been converted to provide a spacious kitchen however still offers a flexible storage space to the front of the home.

Outside

To the front, the property benefits from a driveway providing parking for three vehicles. Accessed via the side gate, the back garden is a great size and offers a combination of lawned and patio areas accompanied by raised borders.

Location

Stocken Close is located within the popular area of Hucclecote. Various local amenities include the local junior schools Hillview and Dinglewell as well as access to a number of secondary and grammar schooling being located within the City.

Material Information

Tenure: Freehold.
Council Tax band: Tax band E
Local authority and rates: Tewkesbury Borough Council - (£2,702.44 per annum 2025/2026)
Electricity supply: Mains
Water supply: Mains
Sewerage: Mains
Heating: Gas Central heating.
Broadband speed: Standard: 11Mbps, Superfast: 74 Mbps, Ultrafast: 1000Mbps.
Mobile phone coverage: EE(Likely) Three(Likely) 02(Likely) Vodafone(Likely).

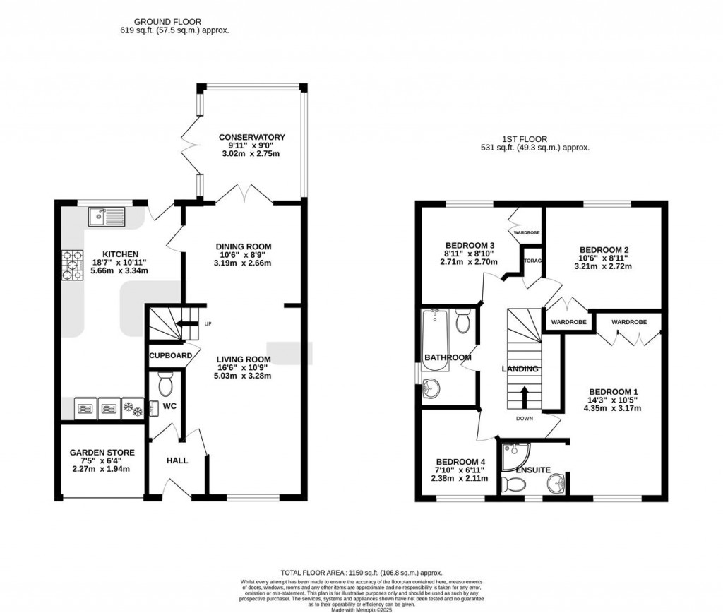
Floorplans For Stocken Close, Hucclecote, Gloucester Floorplans For Stocken Close, Hucclecote, Gloucester Floorplans For Stocken Close, Hucclecote, Gloucester
Arrange a viewing for Stocken Close, Hucclecote, Gloucester

For further details on this property please call us on:
01452 941950

Property Brochure Download PDF Arrange Viewing