3 2 1

3 bed House - Semi-Detached - For Sale
Town Farm Road, Newent
£259,950

  • Three bedroom family home
  • Parking for two vehicles
  • Private rear garden
  • Located in the market town of Newent
  • Ideal first time or investment buy
  • Council tax band C - £2,146.81 (2025/26)
  • EPC B84
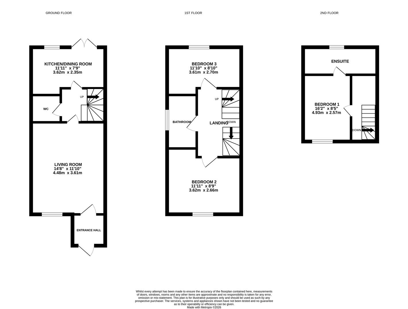
A well-maintained three-bedroom, three storey property offering spacious and practical accommodation, making it an ideal purchase for first-time buyers or a strong investment opportunity. The property benefits from off-road parking, a generous kitchen/dining room, and a separate living room, providing flexible living space for modern lifestyles.

Entrance Hall

Handy space for shoes and coats and door into living room.

Living Room

Generously sized living room with attractive panelled feature wall, window to the front aspect of the property with pleasant outlook over green area and an entrance leading into the inner hallway.

Kitchen / Dining Room

Kitchen / Dining room to include white tiling throughout and French doors leading out to the rear garden. The well appointed kitchen boasts a range of floor and eye level units along with integrated appliances to include four ring gas hob with extractor over, electric oven and a stainless steel sink and spaces for a fridge / freezer, a dishwasher and a washing machine

WC

WC to include a white suite comprising WC and hand wash basin.

Bedroom Two

Double bedroom with recess ideal for wardrobes and window to front aspect with pleasant outlook over green area.

Bedroom Three

Double bedroom with recess ideal for wardrobes and window to rear aspect.

Family Bathroom

Bathroom to include laminate wood style flooring with a white suite comprising a bath, WC and hand wash basin. Frosted window to side aspect.

Bedroom One

Located on the second floor, double bedroom with a window overlooking the front aspect of the property.

En-suite

White suite comprising enclosed shower cubicle, WC and hand wash basin. roof light window to rear aspect.

Outside

To the front of the property is a gravelled area along with a pathway leading to the front entrance. The rear of the property boasts off road parking for two vehicles along with a private rear garden with a lawned area and a patioed area suitable for alfresco dining with a pathway leading to a rear gated access.

Location

Newent originally called Noent is a small market town about 8 miles north west of Gloucester, on the northern edge of the Forest of Dean. The town includes a half-timbered market house, plus other houses of historical nature and Newent Lake a large picturesque lake in the centre of the town, originally part of the Newent Court Estate is the 'jewel of the town'. The town is served by three schools, all within the town, a doctors surgery and dentist, Sports & Leisure Centre and various churches of different denominations. With excellent motorway links to the M50 & M5.

Material Information

Tenure: Leasehold approx 989 years remaining
Ground rent: £150
Service charge: £150
Council tax band: C
Local authority and rates: Forest of Dean Council £2,146.81 (2025/26)
Electricity supply: Mains
Water supply: Mains
Sewerage: Mains
Heating: Mains Gas
Broadband speed: Basic 17 Mbps, Ultrafast 1000 Mbps
Mobile phone coverage: EE, Vodaphone, O2, Three

Floorplans For Town Farm Road, Newent
EPC For Town Farm Road, Newent
Arrange a viewing for Town Farm Road, Newent

For further details on this property please call us on:
01531 828970

Property Brochure Download PDF Arrange Viewing