2 1 1

2 bed Apartment - Duplex - Let Agreed
Merchants Quay, Gloucester Docks, Gloucester
PCM - £975pcm Tenant Fees

  • Duplex Style Apartment
  • Secure Allocated Parking
  • Gas Central Heating
  • Integrated Kitchen Appliances
  • Double Glazing
  • EPC TBC
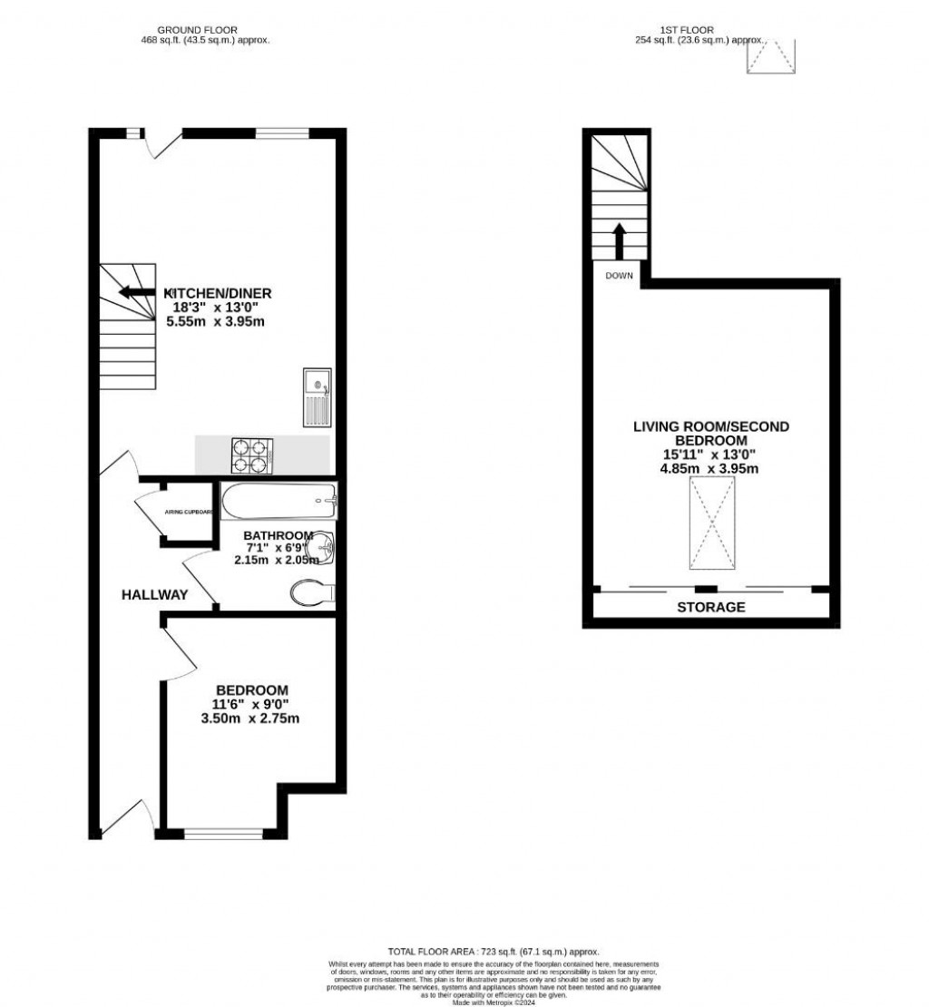
A well-presented duplex style apartment situated at the top of the unique Merchants Quay complex. The spacious and versatile accommodation offers a double bedroom, bathroom, open plan kitchen/diner with a lounge or potential second bedroom on the upper floor. The apartment enjoys plenty of natural light, integrated appliances and allocated parking in secure residents car park.

This property is available mid February and is managed by Naylor Powell. There is a restriction of no pets or smokers.

Services & Material Information

Rent: £975 per calendar month
Holding Deposit: £225 based on 1 weeks’ rent of asking price
Security Deposit: £1,125 based on 5 weeks’ rent of asking price
Council tax band: C
Local authority and rates: Gloucester City Council £1990.01 25/26
Property construction: Steel frame with brick slip & timber cladding.
Electricity supply: Mains
Water supply: Mains
Sewerage: Mains
Heating: Gas Central Heating
Broadband speed: Basic 18 Mbps, Superfast 80 Mbps
Mobile phone coverage: EE, O2, Three

Floorplans For Merchants Quay, Gloucester Docks, Gloucester
EPC For Merchants Quay, Gloucester Docks, Gloucester
Arrange a viewing for Merchants Quay, Gloucester Docks, Gloucester

For further details on this property please call us on:
01452 398010

Property Brochure Download PDF